Back to search results
ACTIVE
$1,298,405
7324 Canyon PointArgyle, TX 76226
5
beds
5+
baths
5,049
sqft
4-car
garage
Standard payment est:$8,096/mo
Get pre-qualified
About this home
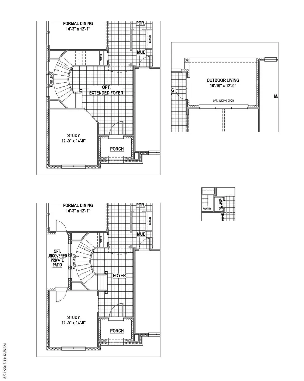
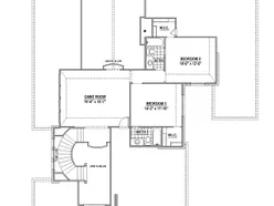
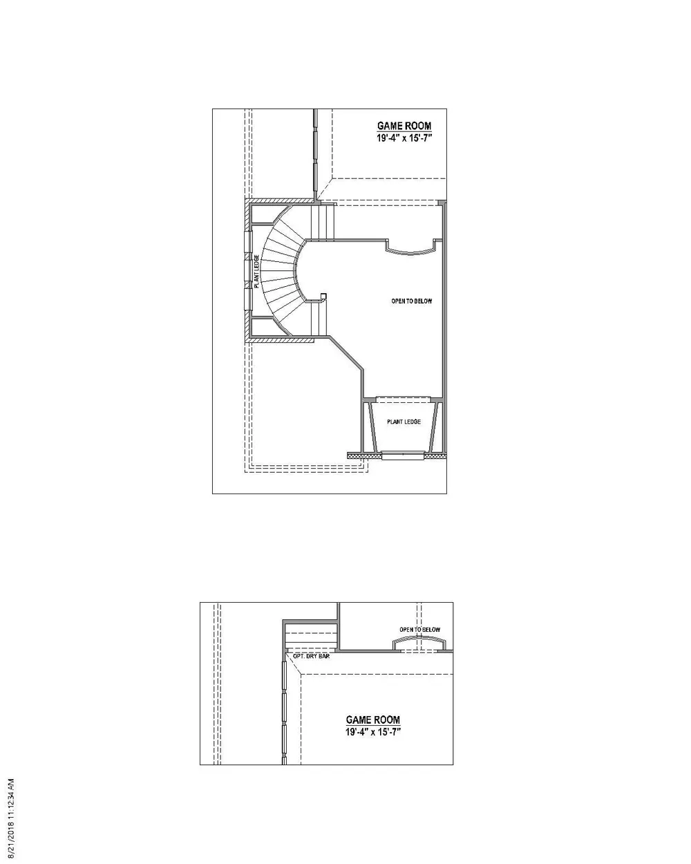
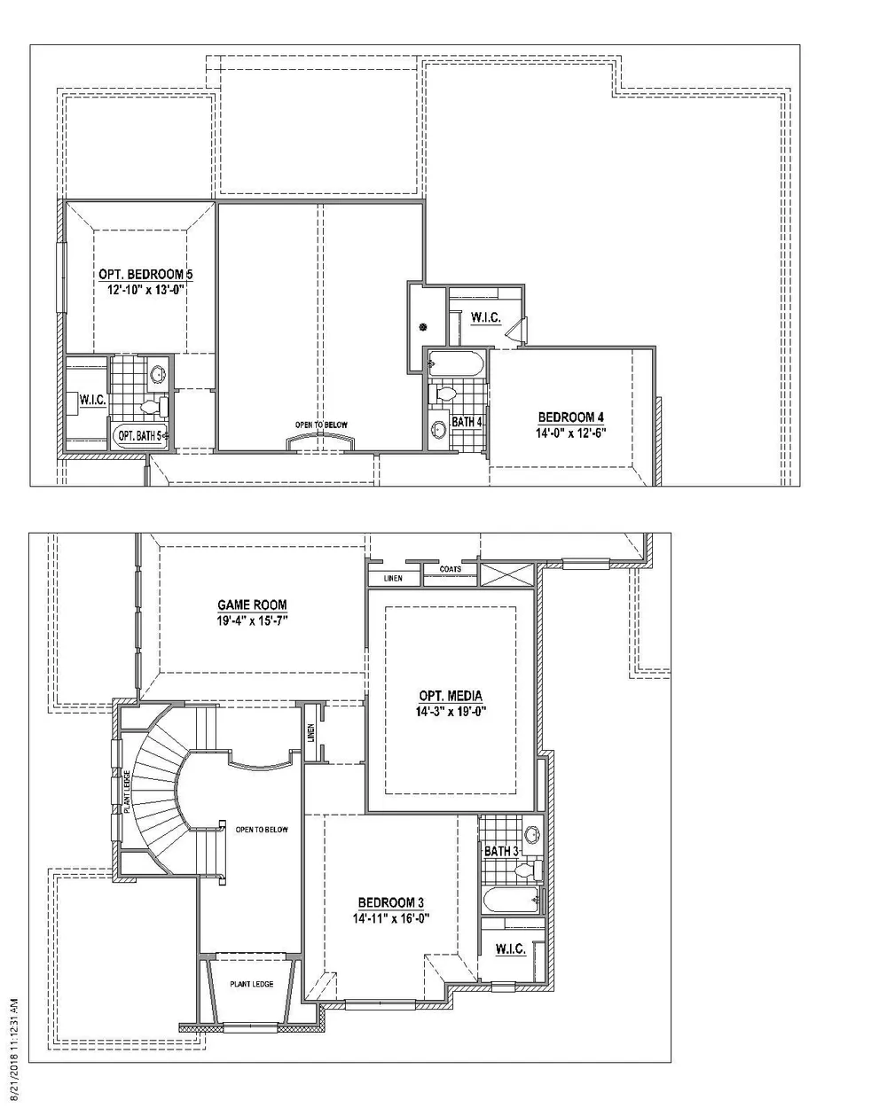
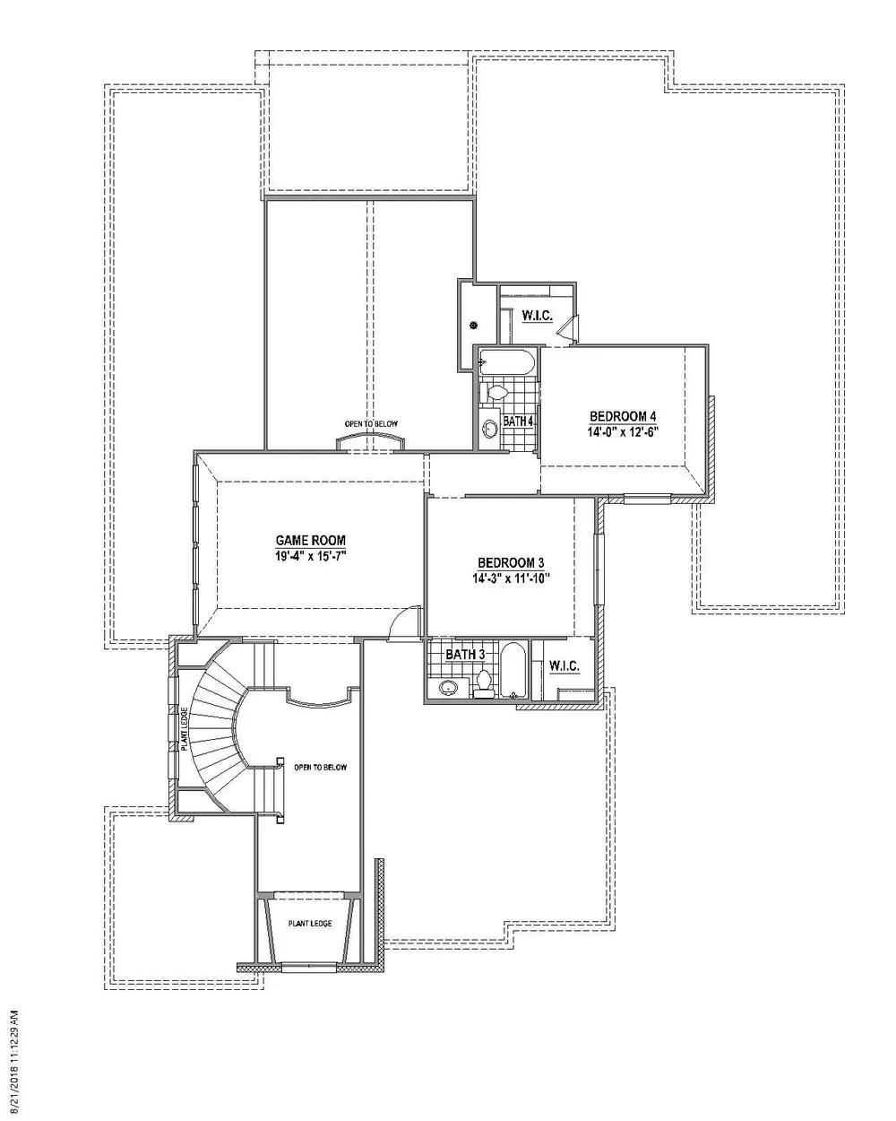
Incredible 2 story home that will take your breath away. The open foyer and curved staircase will impress you as you enter the home. A large home office is located in the front of the home with the formal dining space beyond the staircase. The impressive 4-car split garage has two entrances to the home. Through the front entrance you will find a mud room and powder bath as well as a private guest bedroom with an attached bathroom. As you move on past the foyer, in the family room you will be drawn to the central fireplace and vaulted ceiling. The kitchen and breakfast nook have access to the covered outdoor living space as well as access to the formal dining space. The secluded main bedroom oasis has been designed to be a true getaway space, including a central rotunda leading to the bathroom with dual vanities and 2 generous walk-in closets. The second entrance from the oversized garage is at the back of the home and near the impressive utility room. On the second floor you will walk through a large game room to find 3 more secondary bedrooms with attached full bathrooms. Located on a North facing, 100' wide and 180' deep lot, you don't want to miss your opportunity to call this home!
Floor plan5 images
Specifications
Address
7324 Canyon Point
City, St, Zip
Argyle, TX 76226
Price
$1,298,405
Bedrooms
5
Full baths
5
Half baths
1
Square Feet
5,049
Garages
4-Car
Status
ACTIVE
Estimated completion date
1/31/2025
Map
7
photos
EXTERIORINTERIORFLOORPLANFLOORPLANFLOORPLANFLOORPLANFLOORPLAN
125 S. Kansas Avenue | Olathe, KS | 913-732-8070
©2025 Homebuilders.com. All rights reserved.
Privacy Policy