Back to search results
ACTIVE
$299,900
305 Bendecido LoopElgin, TX 78621
4
beds
3
baths
1,674
sqft
Standard payment est:$1,870/mo
Get pre-qualified
About this home
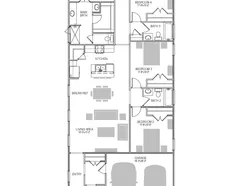
The Cypress, where contemporary elegance meets practical comfort. This thoughtfully designed floor plan offers an inviting blend of open spaces and refined details, making it perfect for both entertaining and everyday living. This layout creates a seamless connection between the kitchen, dining, and living spaces, enhancing the flow and openness of the home. The kitchen is a highlight, featuring a generous island with seating, premium appliances, and ample storage, making it both a functional workspace and a gathering spot.
Floor plan1 image
Specifications
Address
305 Bendecido Loop
City, St, Zip
Elgin, TX 78621
Price
$299,900
Bedrooms
4
Full baths
3
Square Feet
1,674
Status
ACTIVE
Estimated completion date
3/18/2025
Builder
Trophy Signature Homes
Community
Trinity Ranch
Map
32
photos
EXTERIORINTERIORINTERIORINTERIORINTERIORINTERIORINTERIOR
125 S. Kansas Avenue | Olathe, KS | 913-732-8070
©2025 Homebuilders.com. All rights reserved.
Privacy Policy