Back to search results
ACTIVE
$612,990
1912 Palmetto RoadCelina, TX 75009
4
beds
4
baths
3,445
sqft
Standard payment est:$3,822/mo
Get pre-qualified
About this home
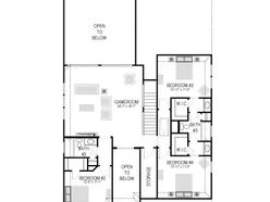
The Van Gogh II is a unique floor plan, well ahead of its time. Featuring five bedrooms and ample storage space, this design beautifully balances boisterous life with private spaces. Host in the game room or decorate cookies in the kitchen. Afterward, take time for yourself on the covered patio or your private sitting room. Both offer beautiful views of the sunflowers and irises in your garden. Join the rest of the residents in the media room to watch the latest Star Wars flick then usher everyone outside to delight in the starry night.
Floor plan2 images
Specifications
Address
1912 Palmetto Road
City, St, Zip
Celina, TX 75009
Price
$612,990
Bedrooms
4
Full baths
4
Square Feet
3,445
Status
ACTIVE
Estimated completion date
2/28/2025
Builder
Trophy Signature Homes
Community
Cross Creek Meadows
Map
26
photos
EXTERIORINTERIORINTERIORINTERIORINTERIORINTERIORINTERIOR
125 S. Kansas Avenue | Olathe, KS | 913-732-8070
©2025 Homebuilders.com. All rights reserved.
Privacy Policy