Back to search results
ACTIVE
$679,000
8616 HaverhillThe Colony, TX 75056
4
beds
3
baths
2,561
sqft
2-car
garage
Standard payment est:$4,234/mo
Get pre-qualified
About this home
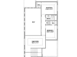
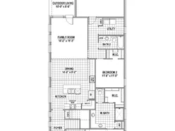
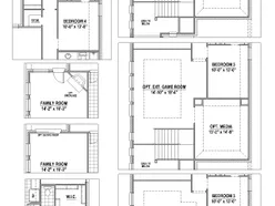
Our 1413 floorplan is a beautifully designed 4 bedroom, 3 bath home, perfect for those who appreciate meticulous craftsmanship and architectural design. This home has 2,561 sq ft of interior space, thoughtfully planned to enhance daily living and entertainment. As you enter, the grandeur of the 18-foot high ceilings in the foyer immediately invites you in. The main bedroom, conveniently located at the front, features an elegant cathedral ceiling and is complemented by two separate closets for ample storage. The adjoining main bath is a retreat on its own with an L-shaped countertop featuring separate sinks and a spacious walk-in shower, with the option to add a soaking tub for ultimate relaxation. The heart of the home, the kitchen, integrates seamlessly with the dining area, boasting an abundance of cabinets, extensive countertop space, a practical corner pantry and a central island for gatherings. An adjacent guest suite on the first floor offers flexibility and can also serve as a home office. The first floor continues to impress with a laundry room enhanced by natural light and the family room, with its towering 18' ceilings and corner fireplace, becomes a cozy haven. The back door opens up to a covered outdoor patio, perfect for alfresco dining and relaxation. Upstairs, a spacious game room anchors the second floor, flanked by two additional bedrooms and a bathroom. This home is perfect for entertaining and raising a family.
Floor plan3 images
Specifications
Address
8616 Haverhill
City, St, Zip
The Colony, TX 75056
Price
$679,000
Bedrooms
4
Full baths
3
Square Feet
2,561
Garages
2-Car
Status
ACTIVE
Estimated completion date
7/10/2025
Builder
American Legend Homes
Map
32
photos
EXTERIORINTERIORINTERIORINTERIORINTERIORINTERIORINTERIOR
125 S. Kansas Avenue | Olathe, KS | 913-732-8070
©2025 Homebuilders.com. All rights reserved.
Privacy Policy