Back to search results
ACTIVE
$648,660
4306 Wildflower LaneOak Point, TX 75068
4
beds
3
baths
3,169
sqft
2-car
garage
Standard payment est:$4,045/mo
Get pre-qualified
About this home
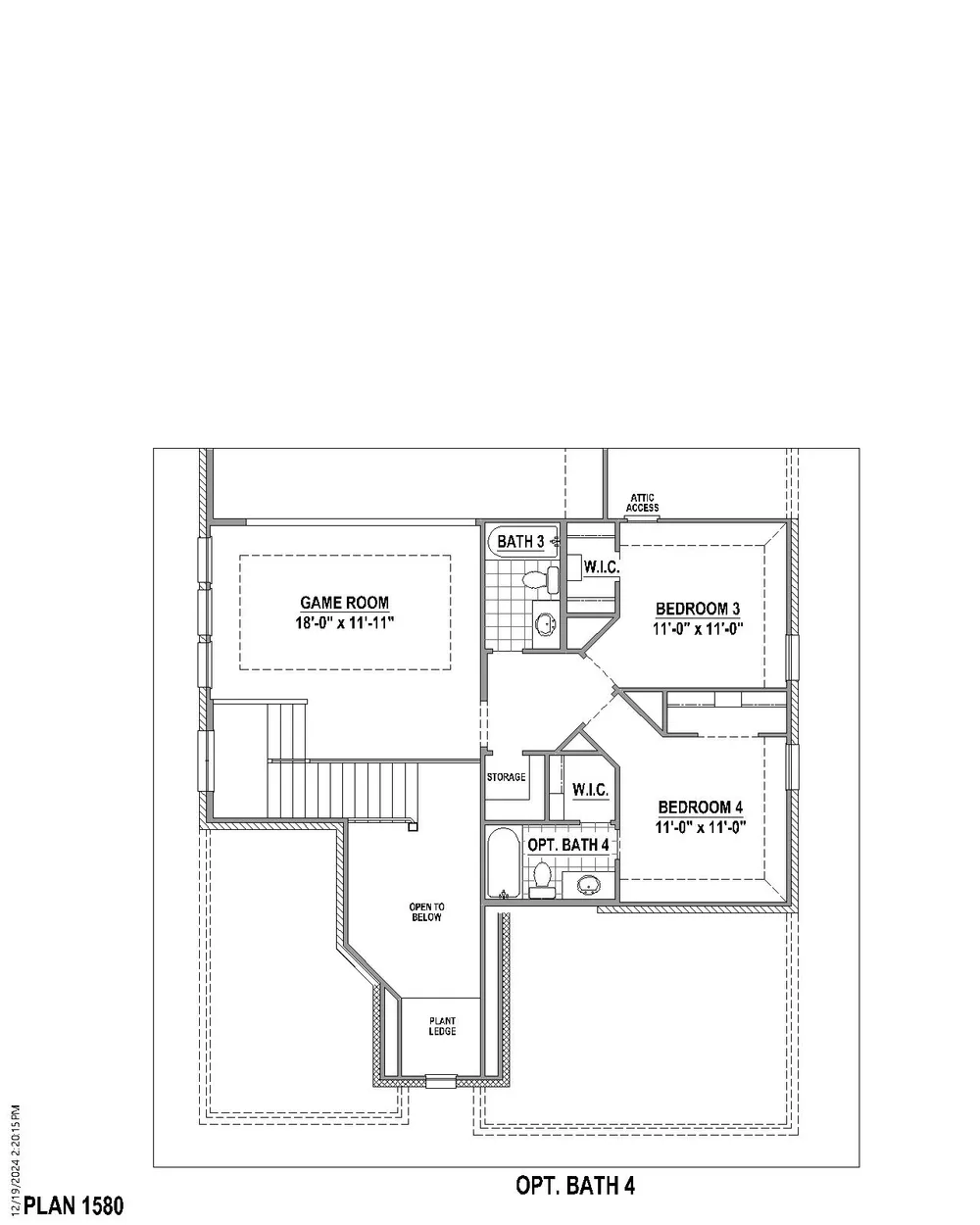
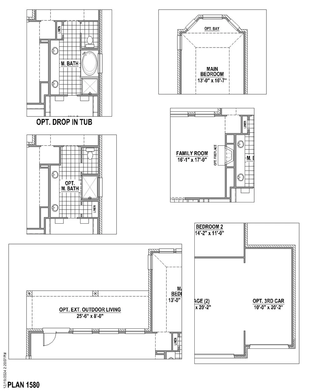
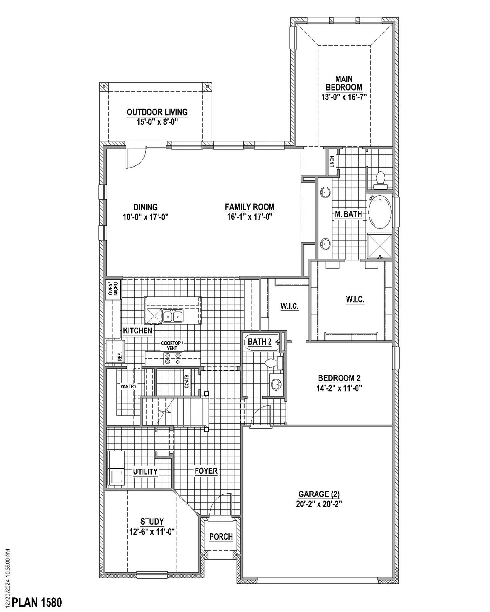
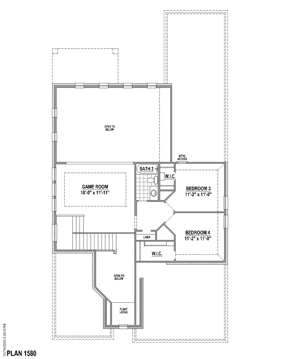
This incredible 2-story home is designed with 4 bedrooms, 3 full baths, study, game room, media room and a 2-car garage. A wide foyer greets you when you enter the home and leads you to the private study and the laundry room. Across from the stairs you will have access to the 2-car garage, a secondary bedroom and a full bathroom. The chefs kitchen includes a huge walk-in pantry, an abundance of cabinetry and opens to the dining space and a family room with stacked windows. The main bedroom is located at the back of the home and boasts a large walk-in closet, a vanity with dual sinks and a garden tub. A game room, media room, 2 secondary bedrooms and a full bathroom are on the second floor and perfectly complete the home. This design also includes many options to customize the home to fit your unique needs.
Floor plan6 images
Specifications
Address
4306 Wildflower Lane
City, St, Zip
Oak Point, TX 75068
Price
$648,660
Bedrooms
4
Full baths
3
Square Feet
3,169
Garages
2-Car
Status
ACTIVE
Estimated completion date
2/28/2026
Builder
American Legend Homes
Map
8
photos
EXTERIORINTERIORFLOORPLANFLOORPLANFLOORPLANFLOORPLANFLOORPLAN
125 S. Kansas Avenue | Olathe, KS | 913-732-8070
©2025 Homebuilders.com. All rights reserved.
Privacy Policy