Back to search results
ACTIVE
$475,990
809 Willow Stream DriveLavon, TX 75166
4
beds
4+
baths
2,809
sqft
2-car
garage
Standard payment est:$2,968/mo
Get pre-qualified
About this home
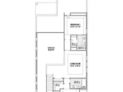
Beautiful open floor plan with 4 bedrooms, 4.5 bathrooms, dining room, game room and an outdoor covered living area on an oversized home site across from a green space. This open 2 story home with high ceilings has an abundance of natural light from the many windows throughout as you enter the foyer and go through into the two story family room. The exquisite main bedroom is located at the back of the home and is complimented by a luxurious bath with dual vanity, walk-in shower and a huge main closet. Throughout the home you will find designer finishes such as wood flooring, beautiful tiles, quartz and natural stone counters and custom built cabinetry. Upstairs you will find 3 additional bedrooms, each with it's own bathroom and each with a walk-in closet. To complete the upstairs is a large open game room area with storage closets. Hillstead is a beautiful master planned community situated between Lake Lavon and Lake Ray Hubbard with a tremendous amount of nature for the whole family to enjoy.
Floor plan3 images
Specifications
Address
809 Willow Stream Drive
City, St, Zip
Lavon, TX 75166
Price
$475,990
Bedrooms
4
Full baths
4
Half baths
1
Square Feet
2,809
Garages
2-Car
Status
ACTIVE
Estimated completion date
8/12/2025
Map
32
photos
EXTERIORINTERIORINTERIORINTERIORINTERIORINTERIORINTERIOR
125 S. Kansas Avenue | Olathe, KS | 913-732-8070
©2025 Homebuilders.com. All rights reserved.
Privacy Policy