Back to search results
ACTIVE
$589,900
4450 Timberdrift StreetMidlothian, TX 76065
4
beds
3+
baths
3,026
sqft
3-car
garage
Standard payment est:$3,659/mo
Get pre-qualified
About this home
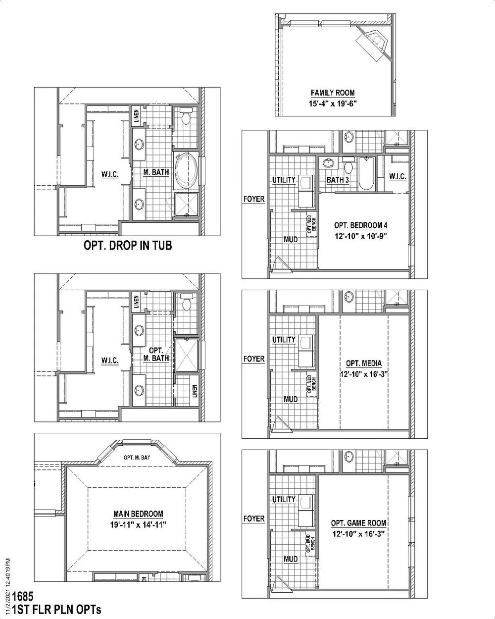
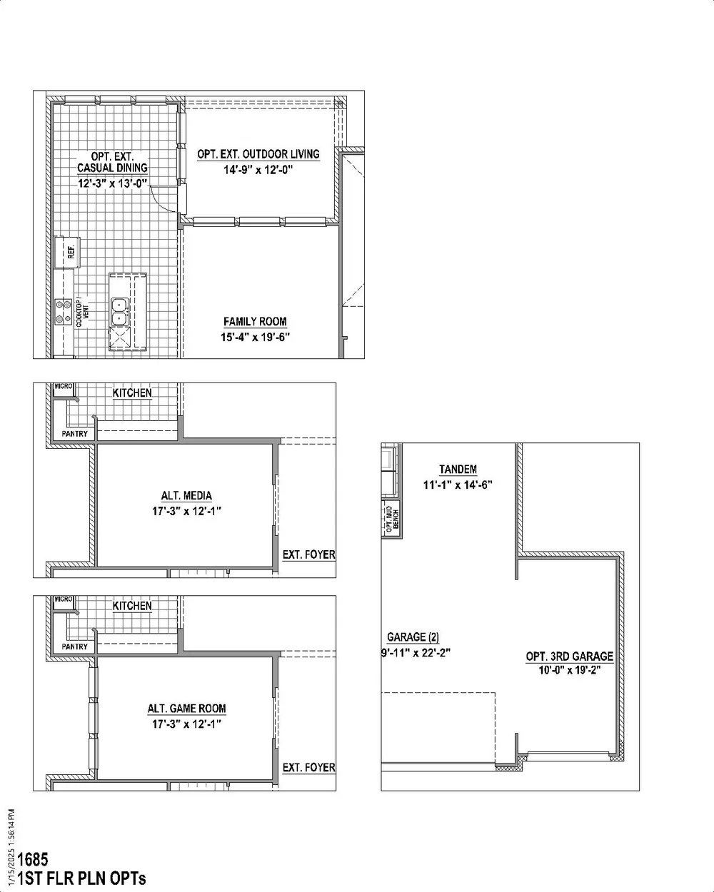
Welcome to this stunning 3,026-square-foot home that effortlessly blends luxury, comfort and functionality. Boasting 4 spacious bedrooms, 3.5 well-appointed bathrooms and a dedicated office, this home is designed to accommodate both everyday living and entertaining. The family room features a cozy fireplace and soaring ceilings, which continue into the main bedroom, enhancing the homes open and airy feel. A generously sized game room, featuring single light glass doors, adds additional space for fun and relaxation.The gourmet kitchen is a chefs dream, showcasing floor-to-ceiling cabinetry, upgraded appliances, double ovens and an extended dining area perfect for gatherings. Step outside to enjoy the expansive covered back patio, ideal for outdoor living.The spacious main suite is a serene retreat, complete with an en-suite bathroom that features a freestanding tub, walk-in shower, split vanities and has direct access to an expansive walk-in closet. Situated on an oversized 60 lot and within walking distance to community amenities, this home offers exceptional living in a highly desirable location.
Floor plan4 images
Specifications
Address
4450 Timberdrift Street
City, St, Zip
Midlothian, TX 76065
Price
$589,900
Bedrooms
4
Full baths
3
Half baths
1
Square Feet
3,026
Garages
3-Car
Status
ACTIVE
Estimated completion date
12/1/2025
Map
33
photos
EXTERIORINTERIORINTERIORINTERIORINTERIORINTERIORINTERIOR
125 S. Kansas Avenue | Olathe, KS | 913-732-8070
©2025 Homebuilders.com. All rights reserved.
Privacy Policy