Back to search results
ACTIVE
$624,900
4425 Timberdrift StreetMidlothian, TX 76065
4
beds
3
baths
2,891
sqft
3-car
garage
Standard payment est:$3,897/mo
Get pre-qualified
About this home
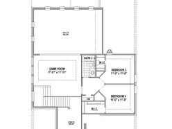
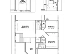
This stunning 4 bedroom, 3 bath home blends luxury, functionality and timeless design. Nestled on a generous -acre corner lot and located across from a peaceful green space, the property offers both privacy and scenic views. Inside, tall ceilings and abundant windows fill the home with natural light, enhancing its spacious feel. The family room features a striking floor-to-ceiling fireplace, creating a cozy yet elegant atmosphere. In the kitchen, floor-to-ceiling cabinetry, upgraded appliancesincluding a double ovenand a walk-in pantry make it a dream for any home chef. A dedicated home office and large game room provide flexible living and entertaining spaces. The main suite is a private retreat, highlighted by a spa-like bathroom complete with a freestanding tub and a walk-in shower. Wood stairs add warmth and character, leading to well-thought-out living areas. An extended back patio and a 3-car garage complete this exceptional home, perfect for comfortable living and stylish entertaining.
Floor plan7 images
Specifications
Address
4425 Timberdrift Street
City, St, Zip
Midlothian, TX 76065
Price
$624,900
Bedrooms
4
Full baths
3
Square Feet
2,891
Garages
3-Car
Status
ACTIVE
Estimated completion date
1/31/2026
Builder
American Legend Homes
Map
9
photos
EXTERIORINTERIORFLOORPLANFLOORPLANFLOORPLANFLOORPLANFLOORPLAN
125 S. Kansas Avenue | Olathe, KS | 913-732-8070
©2025 Homebuilders.com. All rights reserved.
Privacy Policy