Back to search results
ACTIVE
$792,788
8349 Jesse Evans DriveColorado Springs, CO 80908
4
beds
3
baths
3,449
sqft
4-car
garage
Standard payment est:$4,943/mo
Get pre-qualified
About this home
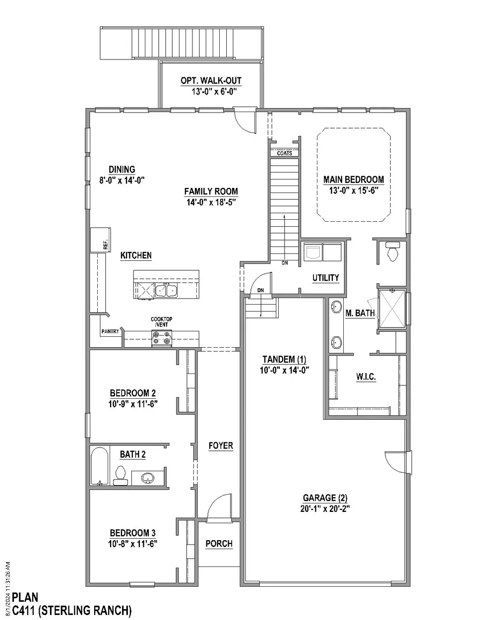
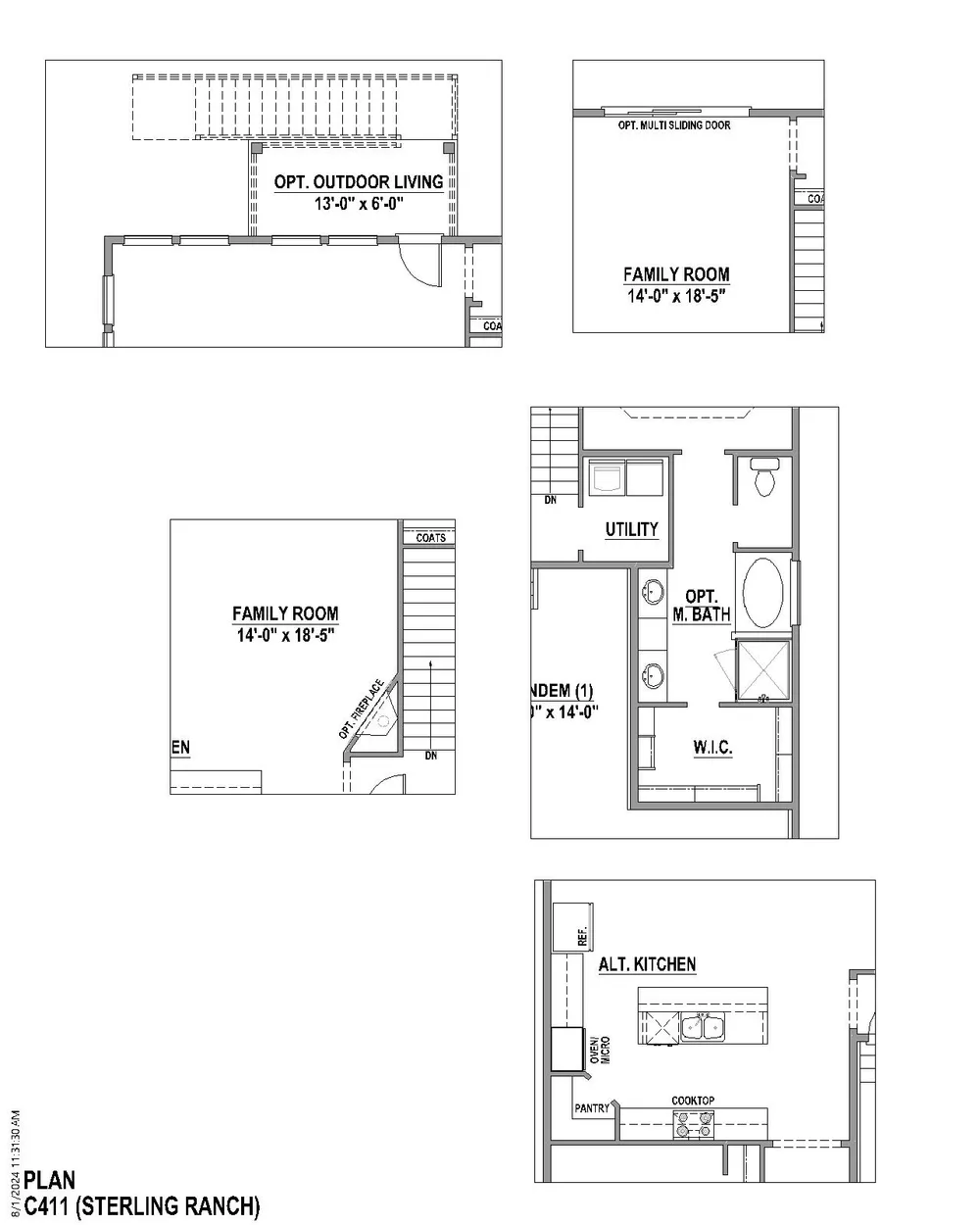
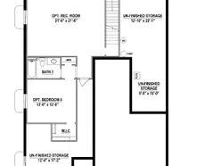
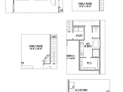
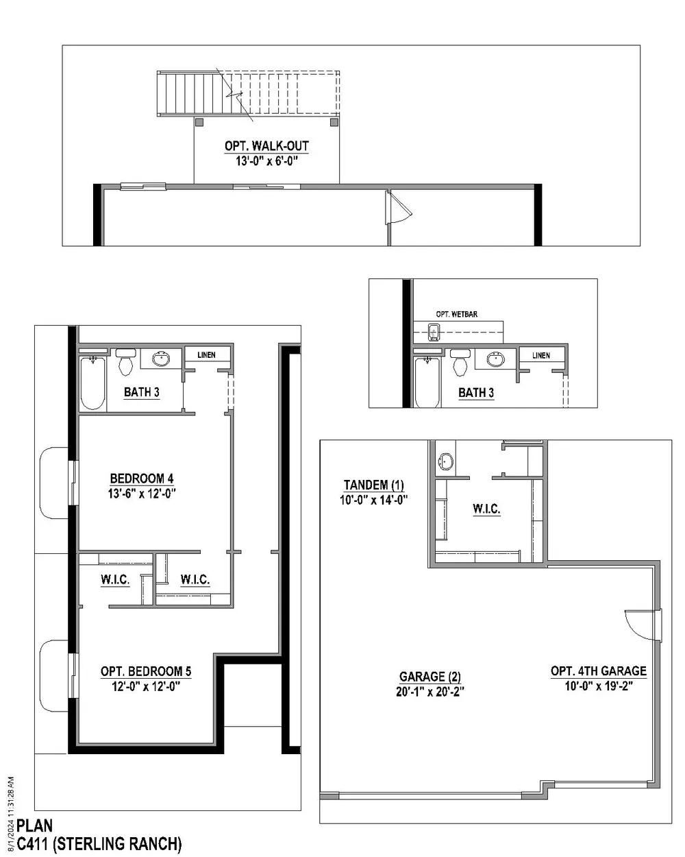
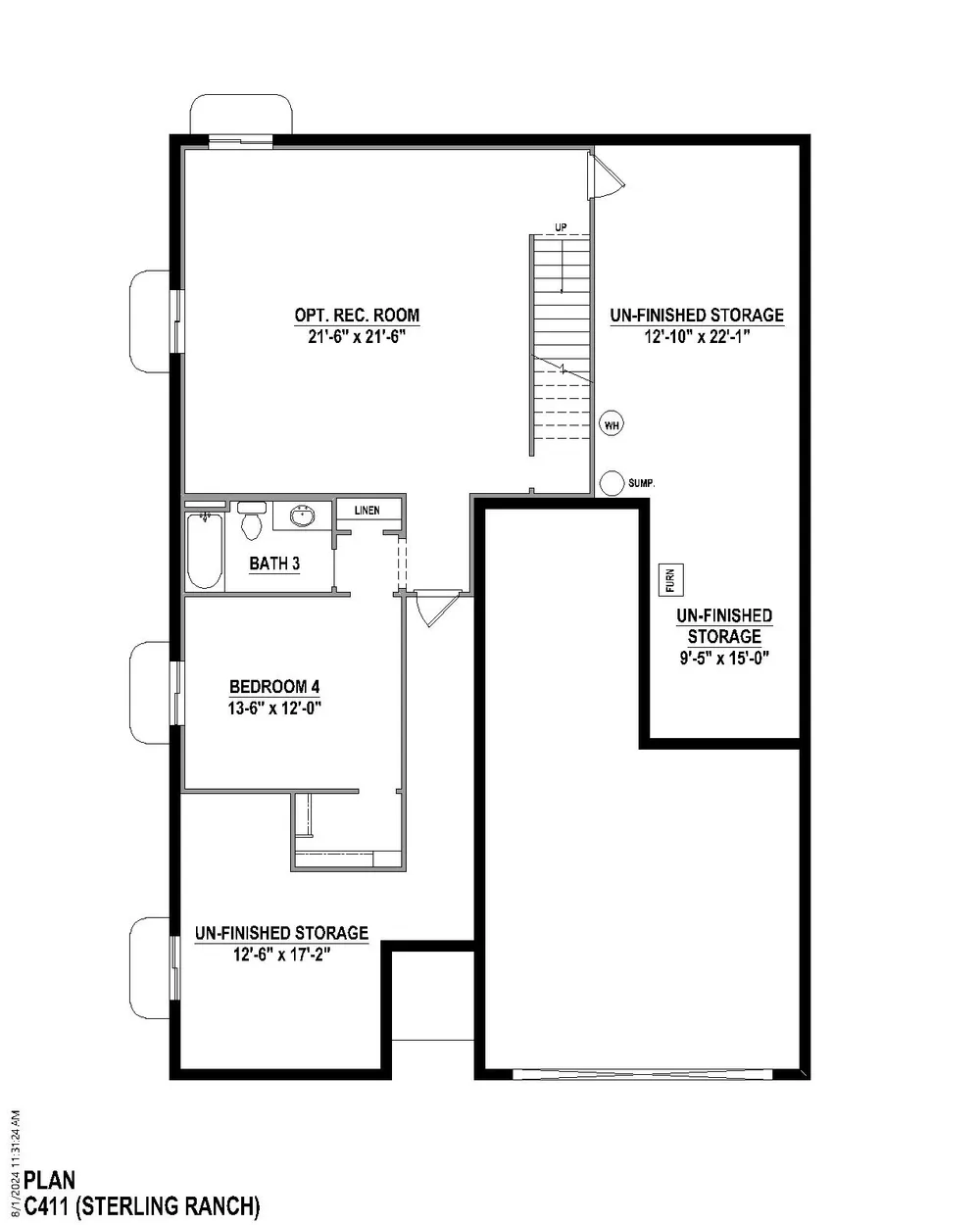
This charming ranch home sits on a large, beautifully maintained lot and offers 4 bedrooms, 3 full baths and an oversized 4-car garageperfect for extra storage or hobby space. The open-concept layout features a spacious kitchen with upgraded cabinetry, stainless steel appliances, large center island and a bright dining nook. The great room is warm and inviting, with a floor-to-ceiling fireplace and expansive sliding doors that lead to a covered outdoor living space, ideal for relaxing or entertaining. The main level also includes a convenient laundry room near the garage entrance, two additional bedrooms, full bath and a private main suite. The suite offers a peaceful retreat with a soaking tub, walk-in shower, dual vanities and a generous walk-in closet. The finished walk-out basement adds exceptional living space with a large rec room, guest bedroom, full bath and a stylish wet barperfect for hosting gatherings. Additional upgrades include fully constructed closets with built-in shoe racks, a tankless water heater and a high-efficiency 96% furnace for year-round comfort.
Floor plan6 images
Specifications
Address
8349 Jesse Evans Drive
City, St, Zip
Colorado Springs, CO 80908
Price
$792,788
Bedrooms
4
Full baths
3
Square Feet
3,449
Garages
4-Car
Status
ACTIVE
Estimated completion date
12/31/2025
Builder
American Legend Homes
Map
8
photos
EXTERIORINTERIORFLOORPLANFLOORPLANFLOORPLANFLOORPLANFLOORPLAN
125 S. Kansas Avenue | Olathe, KS | 913-732-8070
©2025 Homebuilders.com. All rights reserved.
Privacy Policy