Back to search results
ACTIVE
$349,990
806 Landon WayPrinceton, TX 75407
4
beds
2+
baths
2,308
sqft
Standard payment est:$2,194/mo
Get pre-qualified
About this home
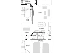
The strength of the Oak II lies in its majestic design. It's simplicity itself to rustle up dinner in the gourmet kitchen featuring quartz countertops, stainless steel appliances and a center island. The dining room is steps away but separate from the wide living room. After dinner, throw down a video game challenge. You turned one of the upstairs bedrooms into the ultimate gaming room. Don't let it go to waste. The game room has become a comfortable flex room that easily transitions from home office to media room. Tuck into bed then retreat downstairs to your luxurious primary suite. Enjoy the peace and quiet.
Floor plan3 images
Specifications
Address
806 Landon Way
City, St, Zip
Princeton, TX 75407
Price
$349,990
Bedrooms
4
Full baths
2
Half baths
1
Square Feet
2,308
Status
ACTIVE
Estimated completion date
11/11/2025
Builder
Trophy Signature Homes
Map
30
photos
EXTERIORINTERIORINTERIORINTERIORINTERIORINTERIORINTERIOR
125 S. Kansas Avenue | Olathe, KS | 913-732-8070
©2025 Homebuilders.com. All rights reserved.
Privacy Policy