Back to search results
ACTIVE
$986,120
1429 Hidden Cove DriveLakewood Village, TX 75068
5
beds
4+
baths
3,624
sqft
4-car
garage
Standard payment est:$6,149/mo
Get pre-qualified
About this home
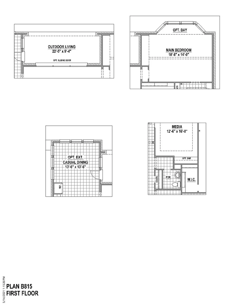
You will feel right at home in this gorgeous 1-story design with 5 bedrooms, 4 full baths, 1 powder bath, study and media room. At the front of the home you will find the laundry and mud room that connect to the 4-car garage. On the opposite side of the entryway you will find a secondary bedroom with an en-suite bathroom and the study. Before reaching the main living area, youll pass the formal dining room located across the hall from the media room with an A/V closet. The open-concept kitchen, family room and breakfast nook is an entertainers dream with vaulted ceilings, an abundance of cabinetry and a central fireplace. The main bedroom retreat is privately located at the back of the home and features 2 walk-in closets, dual vanities and a large soaking tub.
Floor plan3 images
Specifications
Address
1429 Hidden Cove Drive
City, St, Zip
Lakewood Village, TX 75068
Price
$986,120
Bedrooms
5
Full baths
4
Half baths
1
Square Feet
3,624
Garages
4-Car
Status
ACTIVE
Estimated completion date
12/31/2025
Map
5
photos
EXTERIORINTERIORFLOORPLANFLOORPLANFLOORPLAN
125 S. Kansas Avenue | Olathe, KS | 913-732-8070
©2025 Homebuilders.com. All rights reserved.
Privacy Policy