Back to search results
ACTIVE
$558,729
4307 Windy Point RoadOak Point, TX 75068
4
beds
3
baths
2,001
sqft
3-car
garage
Standard payment est:$3,484/mo
Get pre-qualified
About this home
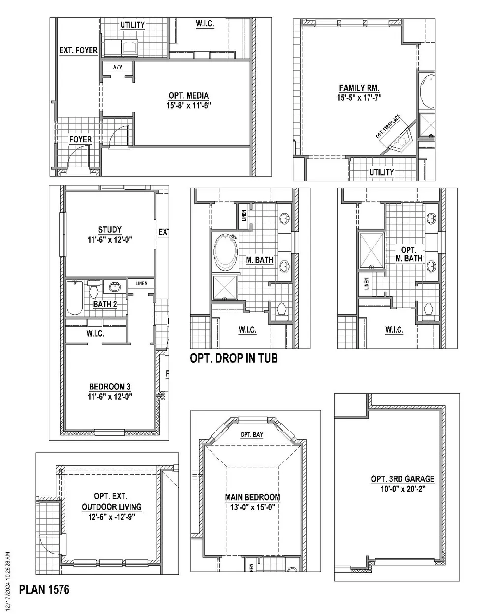
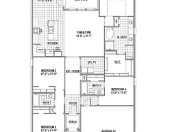
Come home to this beautiful 1 story design with 4 bedrooms, 3 full baths and a 3-car garage on an oversized corner lot. The bright foyer leads to 2 secondary bedrooms, a full bathroom and a linen closet for convenient storage. On the opposite side of the entry lies the fourth bedroom with a full bathroom attached. A private laundry room and linen closet located in the center of the home makes organization easy. Tall windows across the back of the home invite you to the open-concept living space. The chefs kitchen is the heart of the home with a walk-in pantry, functional island seating and a dining area with access to the covered outdoor living center. With a private entrance at the back of the home, the main bedroom features vaulted ceilings, an en-suite bathroom with dual vanities and a walk-in closet with off-season storage.
Floor plan2 images
Specifications
Address
4307 Windy Point Road
City, St, Zip
Oak Point, TX 75068
Price
$558,729
Bedrooms
4
Full baths
3
Square Feet
2,001
Garages
3-Car
Status
ACTIVE
Estimated completion date
2/28/2026
Builder
American Legend Homes
Map
4
photos
EXTERIORINTERIORFLOORPLANFLOORPLAN
125 S. Kansas Avenue | Olathe, KS | 913-732-8070
©2025 Homebuilders.com. All rights reserved.
Privacy Policy