Back to search results
ACTIVE
$635,045
3233 Vaquero LaneCelina, TX 75009
4
beds
3+
baths
2,691
sqft
2-car
garage
Standard payment est:$3,939/mo
Get pre-qualified
About this home
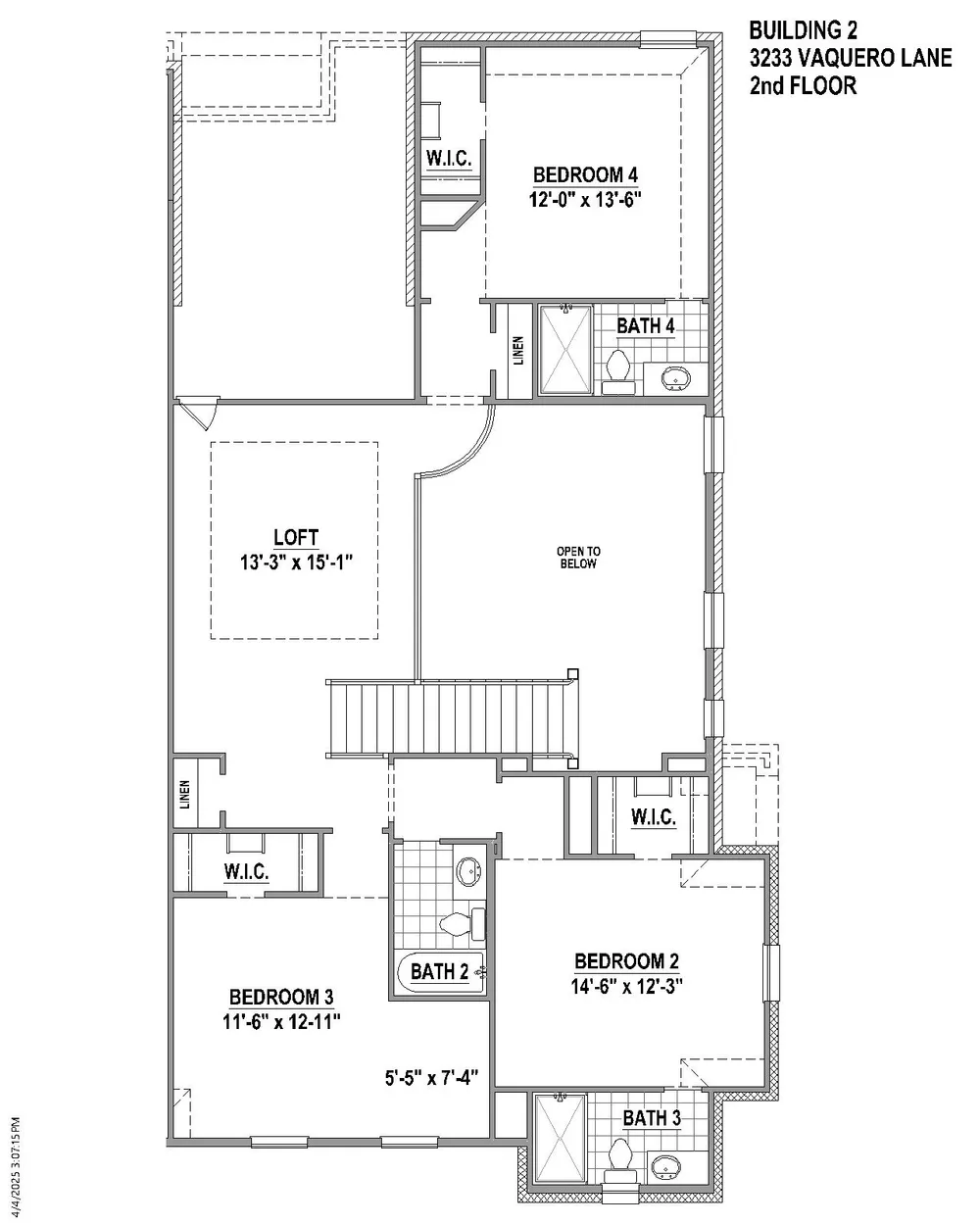
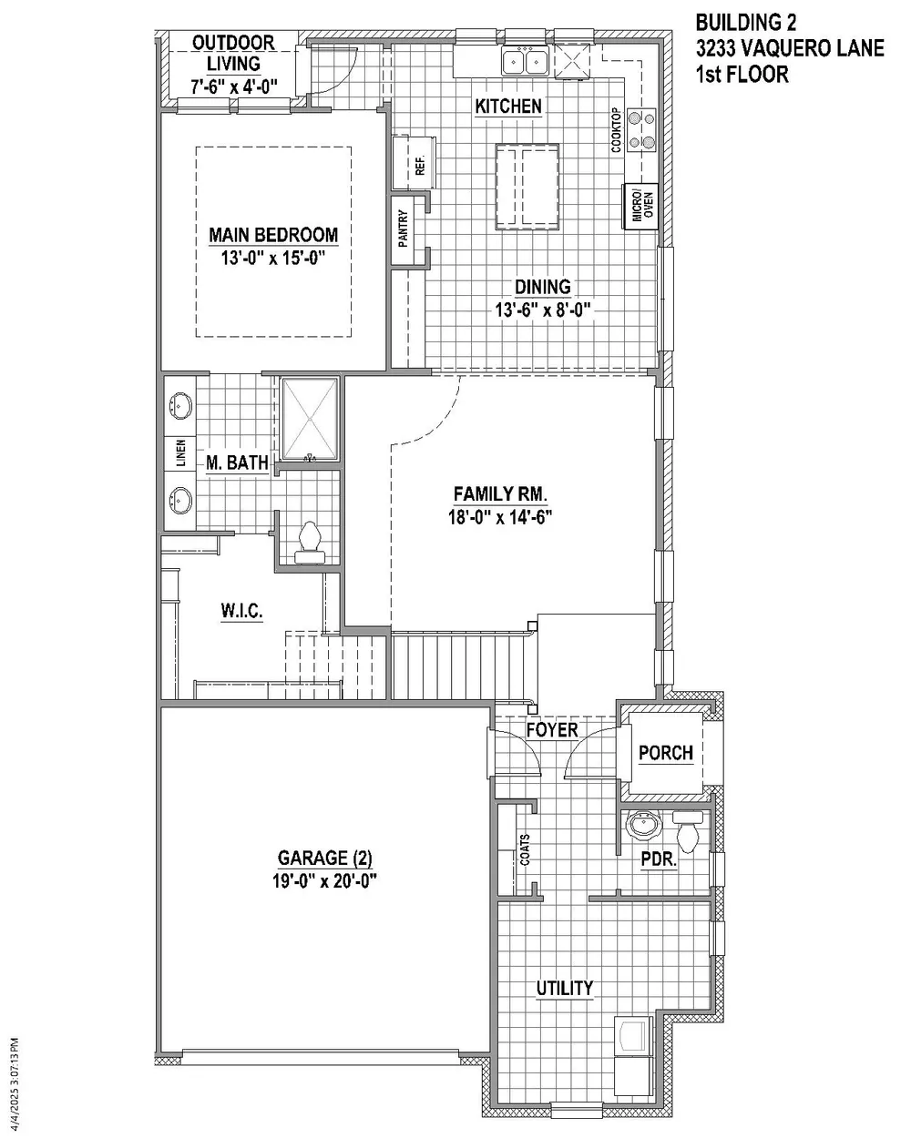
Spacious 2 story plan with main bedroom and bath on the first floor, 3 bedrooms up with 3 full baths, 1 powder bath for guests downstairs,1 dining area and 2-car garage situated with a North facing front door. This home features gorgeous brick, stone and stucco elevation, soaring ceiling in the family room with upper windows and loft overlook, large oversized utility room with sink downstairs, convenient kitchen location near the main bedroom entrance at rear, light and bright kitchen with windows and sink on outer wall and spacious secondary bedrooms with walk-in closets. Amenities include popular light colored prefinished wood floors in main living areas downstairs, wood tread staircase with painted risers, upgraded light package, black metal stair balusters, stylish quartz kitchen and bathroom countertops, upgraded carpet and pad and much more. Two of the three secondary bedrooms offer private walk-in shower baths perfect for guest or teen!
Floor plan3 images
Specifications
Address
3233 Vaquero Lane
City, St, Zip
Celina, TX 75009
Price
$635,045
Bedrooms
4
Full baths
3
Half baths
1
Square Feet
2,691
Garages
2-Car
Status
ACTIVE
Estimated completion date
2/28/2026
Map
5
photos
EXTERIORINTERIORFLOORPLANFLOORPLANFLOORPLAN
125 S. Kansas Avenue | Olathe, KS | 913-732-8070
©2025 Homebuilders.com. All rights reserved.
Privacy Policy