Back to search results
ACTIVE
$751,200
3908 Composition DriveCelina, TX 75078
4
beds
3+
baths
3,259
sqft
2-car
garage
Standard payment est:$4,660/mo
Get pre-qualified
About this home
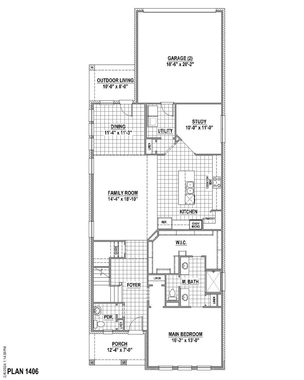
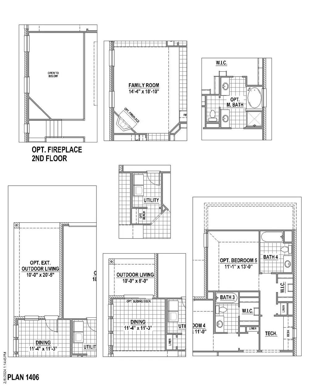
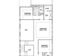
This stunning 2-story plan like our MODEL is thoughtfully designed with you and your family in mind. This home features 4 bedrooms, 3 bathrooms, 1 powder bath, study, media room and a game room. As you enter the foyer, you will immediately notice the sightlines at the back of the home. Perfect for family gatherings, the spacious family room is open to the kitchen and dining area. The gourmet kitchen features a large center island with extra seating, lots of counter space and a corner pantry. Adjacent to the kitchen is a private study, perfect for an office or exercise room. Ideally situated on the first floor, the main bedroom offers a gigantic walk-in closet and an amazing en-suite bathroom with dual vanities and shower. The second floor is complete with a game room, media room, wet bar and three secondary bedrooms with two full-size bathrooms. An outdoor living space that will be perfect for lounging or grilling. This home has a rear entry garage and faces North.
Floor plan4 images
Specifications
Address
3908 Composition Drive
City, St, Zip
Celina, TX 75078
Price
$751,200
Bedrooms
4
Full baths
3
Half baths
1
Square Feet
3,259
Garages
2-Car
Status
ACTIVE
Estimated completion date
4/30/2026
Map
6
photos
EXTERIORINTERIORFLOORPLANFLOORPLANFLOORPLANFLOORPLAN
125 S. Kansas Avenue | Olathe, KS | 913-732-8070
©2026 Homebuilders.com. All rights reserved.
Privacy Policy