Back to search results
ACTIVE
$842,956
5842 Aspenglow StreetFirestone, CO 80504
3
beds
2
baths
2,079
sqft
2-car
garage
Standard payment est:$5,229/mo
Get pre-qualified
About this home
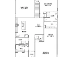
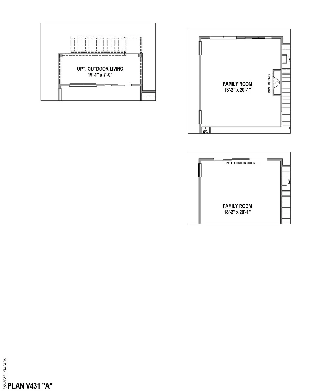
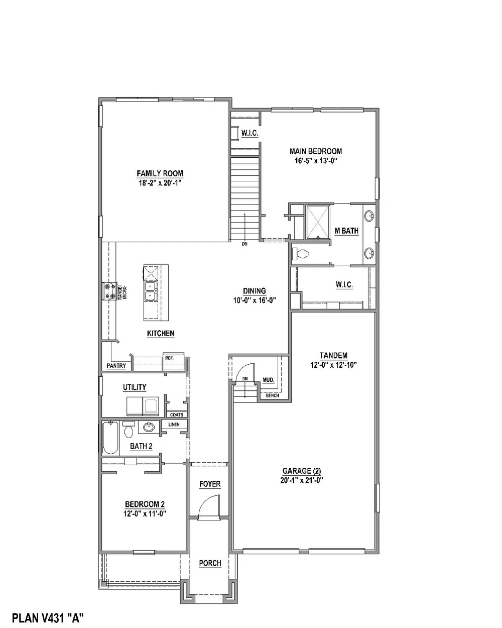
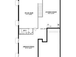
This 3 bedroom Ranch home includes 2 baths and a full unfinished basement! This home has a charming front porch and perfect curb appeal. Enjoy a large and open family room, dining room and kitchen on the main level. This stunning home has designer features throughout, including a gourmet kitchen, a fireplace in the great room, matte black hardware, sleek quartz counter-tops and beautiful trim work. There are upgraded cabinets with soft-close doors and soft-close dovetail drawers. Kitchen appliance package includes stainless steel with a 36" 5-burner gas cook-top, an exterior vented hood, microwave and convection oven. Home also features A/C and smart thermostats. Enjoy the covered outdoor patio for evening meals and summer entertainment. This large corner lot is fully fenced. Enjoy lake living where you can paddle board, kayak and fish. Enjoy miles of trails in the community where you can take a sunset stroll, enjoy a bike ride or take the dog for a walk. Other amenities include basketball and pickleball courts, fitness stations, outdoor grills & fire-pits, a pavilion lawn, a resort style outdoor pool (with a splash pad for kids) and a beautiful indoor community hub with remote working stations and a fitness center.
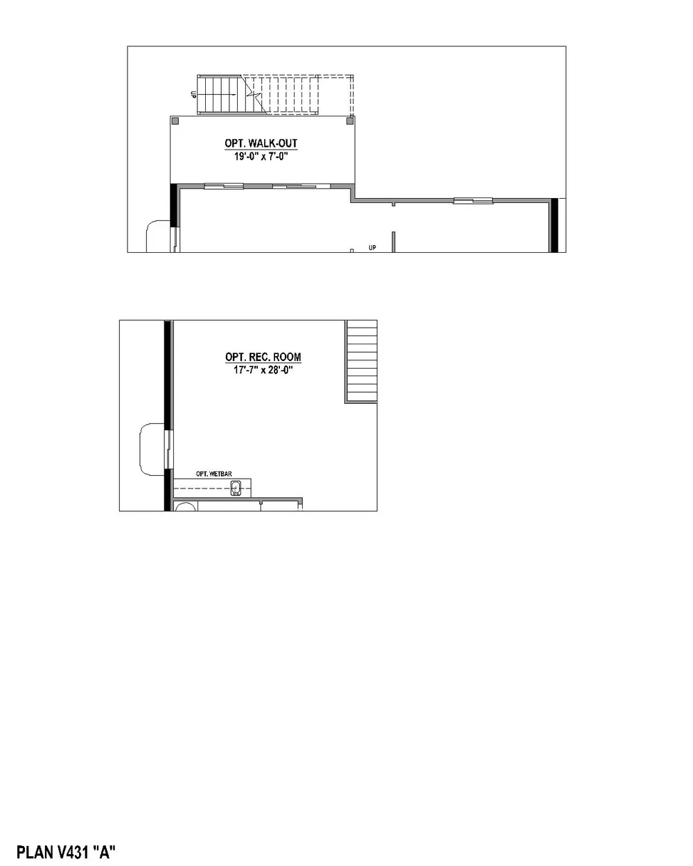
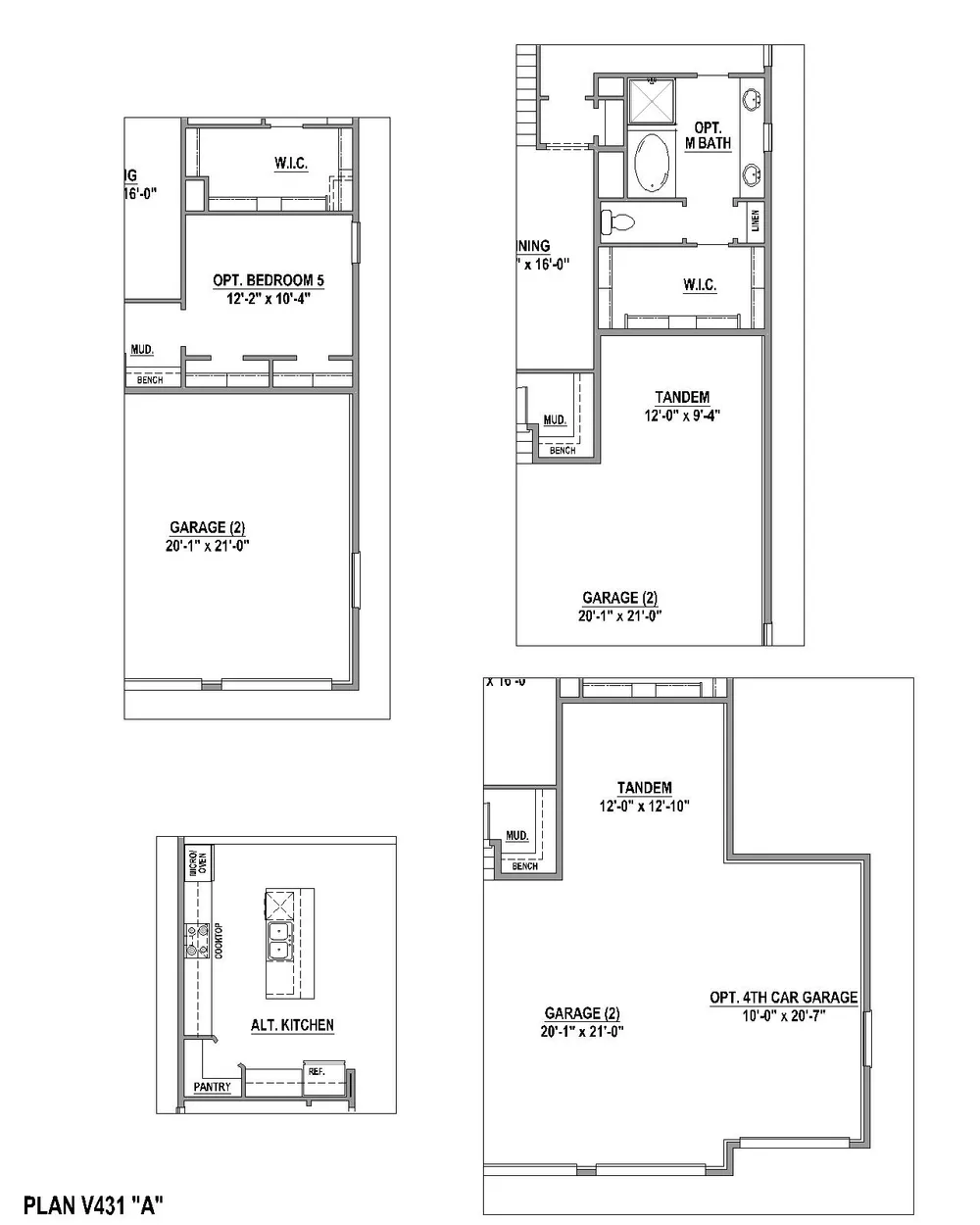
Floor plan7 images
Specifications
Address
5842 Aspenglow Street
City, St, Zip
Firestone, CO 80504
Price
$842,956
Bedrooms
3
Full baths
2
Square Feet
2,079
Garages
2-Car
Status
ACTIVE
Estimated completion date
12/31/2025
Builder
American Legend Homes
Map
9
photos
EXTERIORINTERIORFLOORPLANFLOORPLANFLOORPLANFLOORPLANFLOORPLAN
125 S. Kansas Avenue | Olathe, KS | 913-732-8070
©2025 Homebuilders.com. All rights reserved.
Privacy Policy