Back to search results
ACTIVE
$439,500
1113 Trinity DriveSpringtown, TX 76082
4
beds
2+
baths
2,475
sqft
2-car
garage
Standard payment est:$2,726/mo
Get pre-qualified
About this home
Our newest 2-story design, cleverly blends the living spaces you need and want. The 2,475-square-foot Barrow floor plan incorporates 4 bedrooms, 2.5 baths, and an open concept in the main living area, with an easy flow from one space to the next. The kitchen, dining area, and family room come together, each with a dedicated space but no walls to divide themperfect for togetherness. Get creative in your smartly appointed kitchen, including a center island, granite countertops, walk-in pantry, decorator cabinets, and stainless steel appliances. When you need a break from that togetherness, its just a few steps to the owner's suite, which we situated on the first floor for privacy and convenience. Your retreat occupies one side of the home, in true suite style. Unwind in an oversized bedroom where you can view your backyard, maybe from a sitting area. The owner's bath is styled with dual, but separate, vanities, a soaking tub, walk-in shower, and a private water closet. Your walk-in closet features our higher standard for closet organization. If all this space is quite enough, weve included a flex room off the foyer, with a double-door entry. Transform it into a form dining or living room, home office, study, man cave, playroom, or even a guest room. Its never difficult to turn a bonus space into something worthwhile.
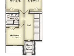
Floor plan2 images
Specifications
Address
1113 Trinity Drive
City, St, Zip
Springtown, TX 76082
Price
$439,500
Bedrooms
4
Full baths
2
Half baths
1
Square Feet
2,475
Garages
2-Car
Status
ACTIVE
Estimated completion date
2/1/2026
Map
6
photos
INTERIORINTERIORINTERIORINTERIORFLOORPLANFLOORPLAN
125 S. Kansas Avenue | Olathe, KS | 913-732-8070
©2026 Homebuilders.com. All rights reserved.
Privacy Policy