Back to search results
ACTIVE
$1,599,000
1801 Vista Valley DriveWindsor, CO 80550
5
beds
5+
baths
5,021
sqft
3-car
garage
Standard payment est:$9,918/mo
About this home
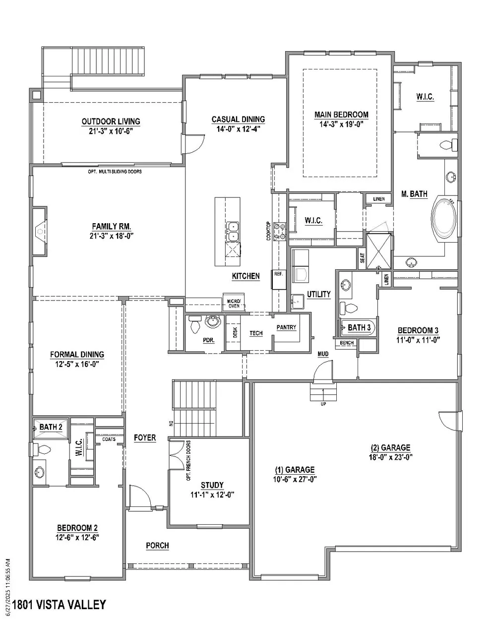
Farmhouse Flair Meets Pure Luxury on the Golf Course!Say hello to your 5,021-sq-ft walk-out farmhouse dream home. With 5 bedrooms and 7 baths, theres plenty of room for everyone and then some. The kitchen? A total showstopper. Think full slab countertops, pot filler, farmhouse sink, Thermador appliances ready for culinary greatness and an island big enough to host brunch, homework and a snack raid all at once. Upstairs, downstairs, inside, outsidethis home is built for good times. The walk-out lower level is perfect for movie nights, game days or finished one of the 2 large unfinished areas with a home gym. Includes as large wet bar and 2 ensuite rooms for privacy. Nestled in the amenity filled Raindance National Golf Course neighborhood, this home is a must see.
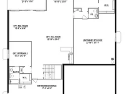
Floor plan3 images
Specifications
Address
1801 Vista Valley Drive
City, St, Zip
Windsor, CO 80550
Price
$1,599,000
Bedrooms
5
Full baths
5
Half baths
2
Square Feet
5,021
Garages
3-Car
Status
ACTIVE
Estimated completion date
3/31/2026
Map
58
photos
EXTERIORINTERIORINTERIORINTERIORINTERIORINTERIORINTERIOR
125 S. Kansas Avenue | Olathe, KS | 913-732-8070
©2026 Homebuilders.com. All rights reserved.
Privacy Policy