Back to search results
ACTIVE
$1,699,000
1723 Flourish DriveWindsor, CO 80550
5
beds
5+
baths
5,021
sqft
3-car
garage
Standard payment est:$10,539/mo
About this home
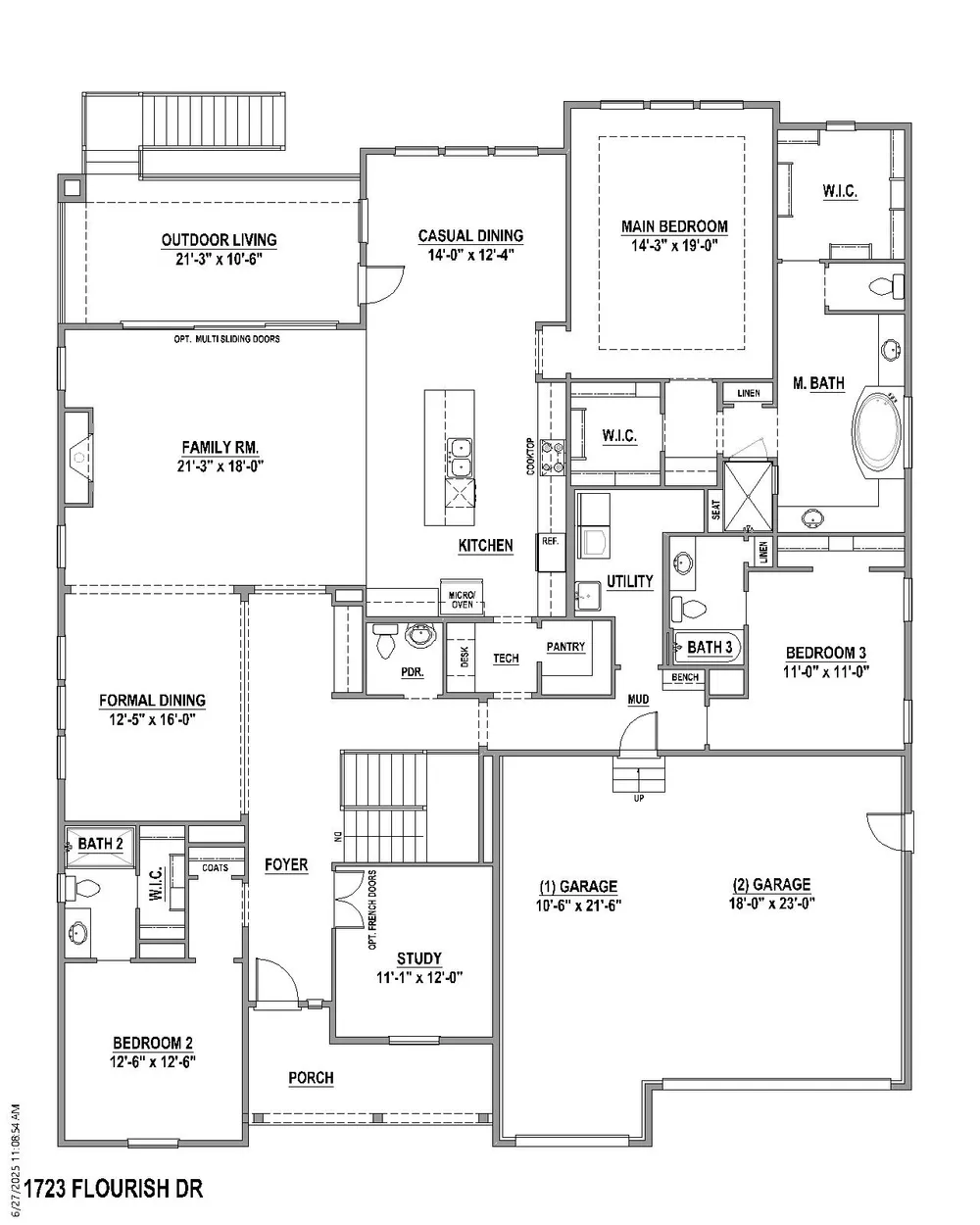
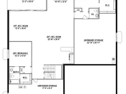
Stunning 5 bedroom contemporary farmhouse backing to the Raindance National Golf Course.This exceptional 5,021-sq-ft walk-out farmhouse-style home blends luxury, comfort and effortless entertaining. Featuring 5 spacious bedrooms and 7 beautifully appointed baths, every corner of this residence offers elevated design and thoughtful detail. The gourmet kitchen is a true showpiece, complete with elegant quartzite countertops, premium Thermador appliances, custom cabinetry and an oversized island perfect for gatherings. Expansive living and 2 dining areas showcase soaring 12 foot ceilings, designer lighting and large windows framing serene golf-course views. The walk-out lower level provides additional space for recreation, relaxation or hosting guestswith a large wet bar and 2 ensuite bedrooms. Multiple outdoor living areas create an ideal setting for enjoying sunsets, open fairways and the peaceful surroundings. Located in master planned community of Raindance, this home delivers exceptional craftsmanship in one of the areas most desirable Northern Colorado neighborhoods.
Floor plan3 images
Specifications
Address
1723 Flourish Drive
City, St, Zip
Windsor, CO 80550
Price
$1,699,000
Bedrooms
5
Full baths
5
Half baths
2
Square Feet
5,021
Garages
3-Car
Status
ACTIVE
Estimated completion date
3/31/2026
Map
55
photos
EXTERIORINTERIORINTERIORINTERIORINTERIORINTERIORINTERIOR
125 S. Kansas Avenue | Olathe, KS | 913-732-8070
©2026 Homebuilders.com. All rights reserved.
Privacy Policy