Back to search results
ACTIVE
$1,037,865
4028 Allegro DriveCelina, TX 75078
4
beds
4+
baths
4,019
sqft
3-car
garage
Standard payment est:$6,438/mo
Get pre-qualified
About this home
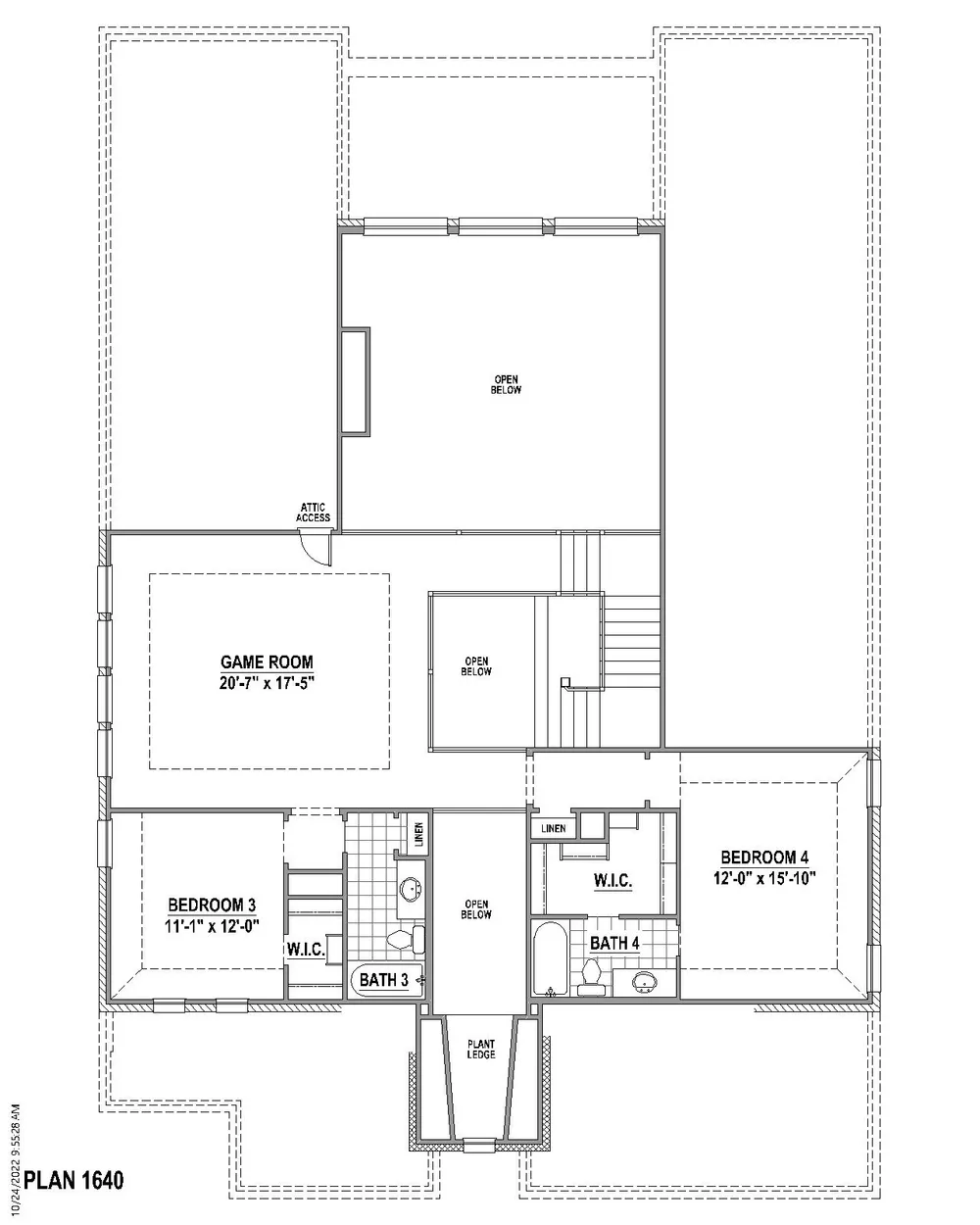
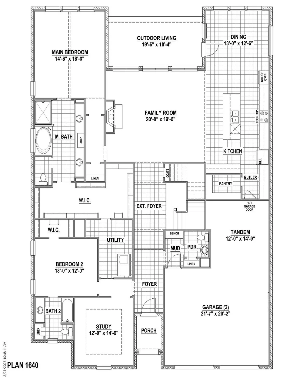
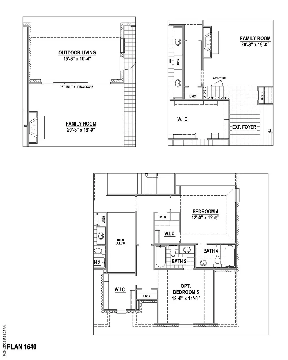
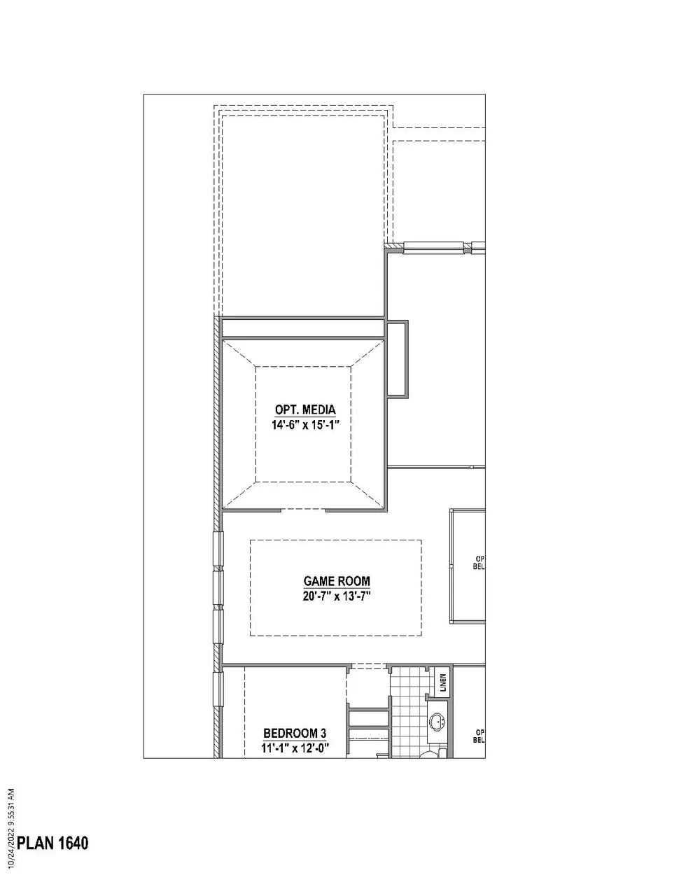
This stunning two-story residence like MODEL offers four spacious bedrooms and four and a half beautifully appointed baths, designed for both everyday comfort and upscale entertaining. A dramatic two-story family room features expansive sliding glass doors that flood the space with natural light and seamlessly connect indoor and outdoor living. The gourmet kitchen is a chefs dream, complete with premium finishes, ample prep space and a striking fireplace that adds warmth and character. A private study provides the perfect work-from-home retreat, while the dedicated media room and game room create ideal spaces for relaxation and fun. Elegant curved stairs serve as an architectural focal point, enhancing the homes refined design. Thoughtfully laid out for functionality and flow, this home also includes a three-car garage and generous storage throughout. With its blend of luxury details, versatile living areas, and timeless style, this home is perfectly suited for modern living. This home faces North.
Floor plan4 images
Specifications
Address
4028 Allegro Drive
City, St, Zip
Celina, TX 75078
Price
$1,037,865
Bedrooms
4
Full baths
4
Half baths
1
Square Feet
4,019
Garages
3-Car
Status
ACTIVE
Estimated completion date
4/30/2026
Map
6
photos
EXTERIORINTERIORFLOORPLANFLOORPLANFLOORPLANFLOORPLAN
125 S. Kansas Avenue | Olathe, KS | 913-732-8070
©2026 Homebuilders.com. All rights reserved.
Privacy Policy