Back to search results
ACTIVE
$255,990
1246 Minorca StreetHuffman, TX 77336
4
beds
2+
baths
2,055
sqft
Standard payment est:$1,588/mo
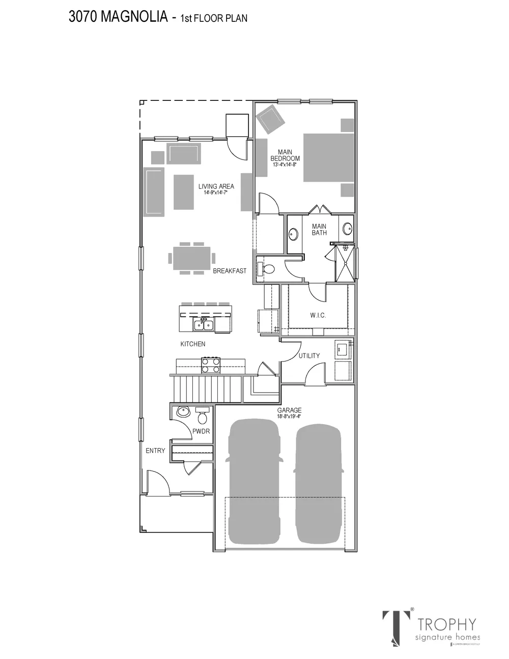
About this home
A floor plan that epitomizes grace and functionality, offering a harmonious blend of classic charm and contemporary comfort - the Magnolia. Designed with meticulous attention to detail, this layout creates an inviting space ideal for both relaxed living and elegant entertaining. In essence, the Magnolia floor plan offers a perfect blend of elegance and everyday convenience, delivering a living experience that is both refined and accommodating. Discover the Magnolia, where timeless beauty meets modern living.
Floor plan2 images
Specifications
Address
1246 Minorca Street
City, St, Zip
Huffman, TX 77336
Price
$255,990
Bedrooms
4
Full baths
2
Half baths
1
Square Feet
2,055
Status
ACTIVE
Estimated completion date
4/10/2026
Builder
Trophy Signature Homes
Map
30
photos
EXTERIORINTERIORINTERIORINTERIORINTERIORINTERIORINTERIOR
125 S. Kansas Avenue | Olathe, KS | 913-732-8070
©2026 Homebuilders.com. All rights reserved.
Privacy Policy