Back to search results
ACTIVE
$594,990
4700 Sandburg StreetMckinney, TX 75071
5
beds
3
baths
3,140
sqft
2-car
garage
Standard payment est:$3,691/mo
D2B discount est:$3,078/moSAVE $612

Winter Savings Sales Event - CROSS CREEK MEADOWS | PAINTED TREE*

4.99% APY (5.689 APR)* - 30-Year Fixed Rate Mortgage
Get pre-qualified
About this home
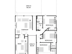
The Winters plan is tailored to fulfill your requirements currently and for the long term. With five bedrooms, everyone enjoys their own space, accompanied by three bathrooms for added convenience. Impress your guests as you entertain at the central island in the kitchen, seamlessly flowing into the breakfast nook and family room. Meanwhile, guests can enjoy their own entertainment in the game room and media room. The primary suite boasts an outstanding walk-in closet for added luxury!
Floor plan3 images
Specifications
Address
4700 Sandburg Street
City, St, Zip
Mckinney, TX 75071
Price
$594,990
Bedrooms
5
Full baths
3
Square Feet
3,140
Garages
2-Car
Status
ACTIVE
Estimated completion date
4/21/2026
Builder
Trophy Signature Homes
Map
28
photos
EXTERIORINTERIORINTERIORINTERIORINTERIORINTERIORINTERIOR
125 S. Kansas Avenue | Olathe, KS | 913-732-8070
©2026 Homebuilders.com. All rights reserved.
Privacy Policy