Back to search results
ACTIVE
$553,960
4307 Azalea TrailOak Point, TX 75068
3
beds
3+
baths
2,315
sqft
2-car
garage
Standard payment est:$3,436/mo
Get pre-qualified
About this home
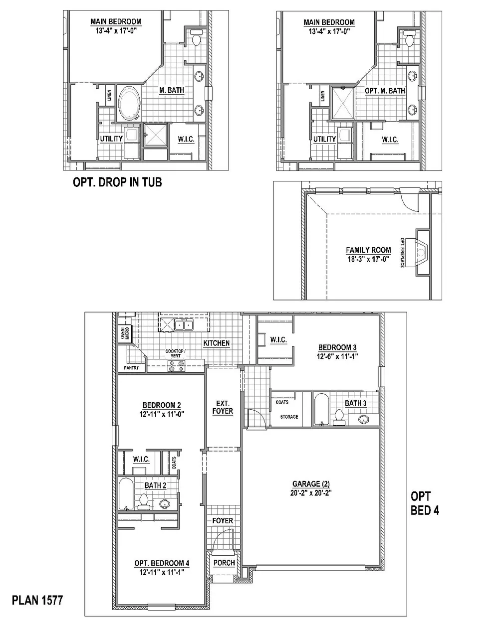
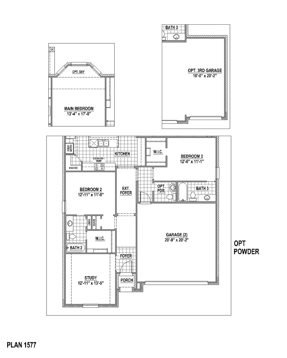
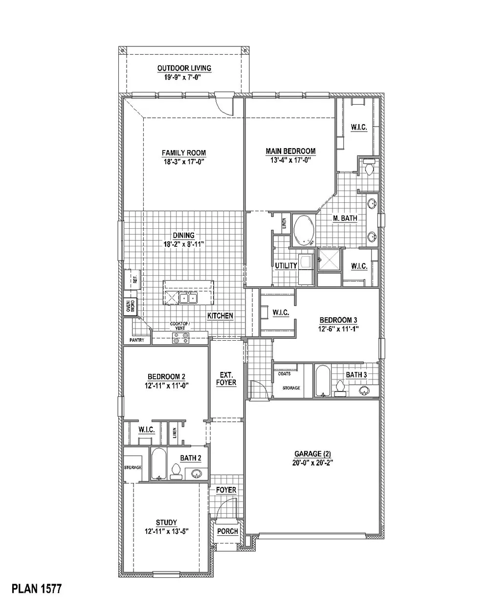
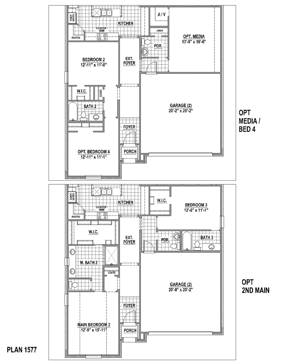
This beautifully designed one-story home offers exceptional comfort and functionality with three spacious bedrooms, including a secondary main suite, three full bathrooms and an additional half bath. Thoughtfully crafted for modern living, the heart of the home is the chef-inspired kitchen, featuring an open-concept layout with clear sightlines to both the dining and family roomsperfect for entertaining and everyday living. The kitchen is equipped with a large center island, abundant counter space and a convenient corner pantry, making meal preparation effortless and enjoyable. The private main suite is tucked away at the rear of the home, offering a peaceful retreat with its own private entrance. This luxurious space includes two walk-in closets and a spa-like en-suite bathroom complete with dual vanities, a spacious glass-enclosed shower and an elegant freestanding soaking tub. Every detail has been thoughtfully selected to enhance comfort and style. Located just a short walk from the community pool, this home is ideally situated for relaxation and recreation. Loaded with premium upgrades and designer touches throughout, this exceptional property delivers both convenience and sophistication in one stunning package.
Floor plan5 images
Specifications
Address
4307 Azalea Trail
City, St, Zip
Oak Point, TX 75068
Price
$553,960
Bedrooms
3
Full baths
3
Half baths
1
Square Feet
2,315
Garages
2-Car
Status
ACTIVE
Estimated completion date
6/30/2026
Map
7
photos
EXTERIORINTERIORFLOORPLANFLOORPLANFLOORPLANFLOORPLANFLOORPLAN
125 S. Kansas Avenue | Olathe, KS | 913-732-8070
©2026 Homebuilders.com. All rights reserved.
Privacy Policy