Back to search results
ACTIVE
$1,080,140
841 Bella Casa DriveKeller, TX 76248
4
beds
4+
baths
3,779
sqft
2-car
garage
Standard payment est:$6,700/mo
About this home
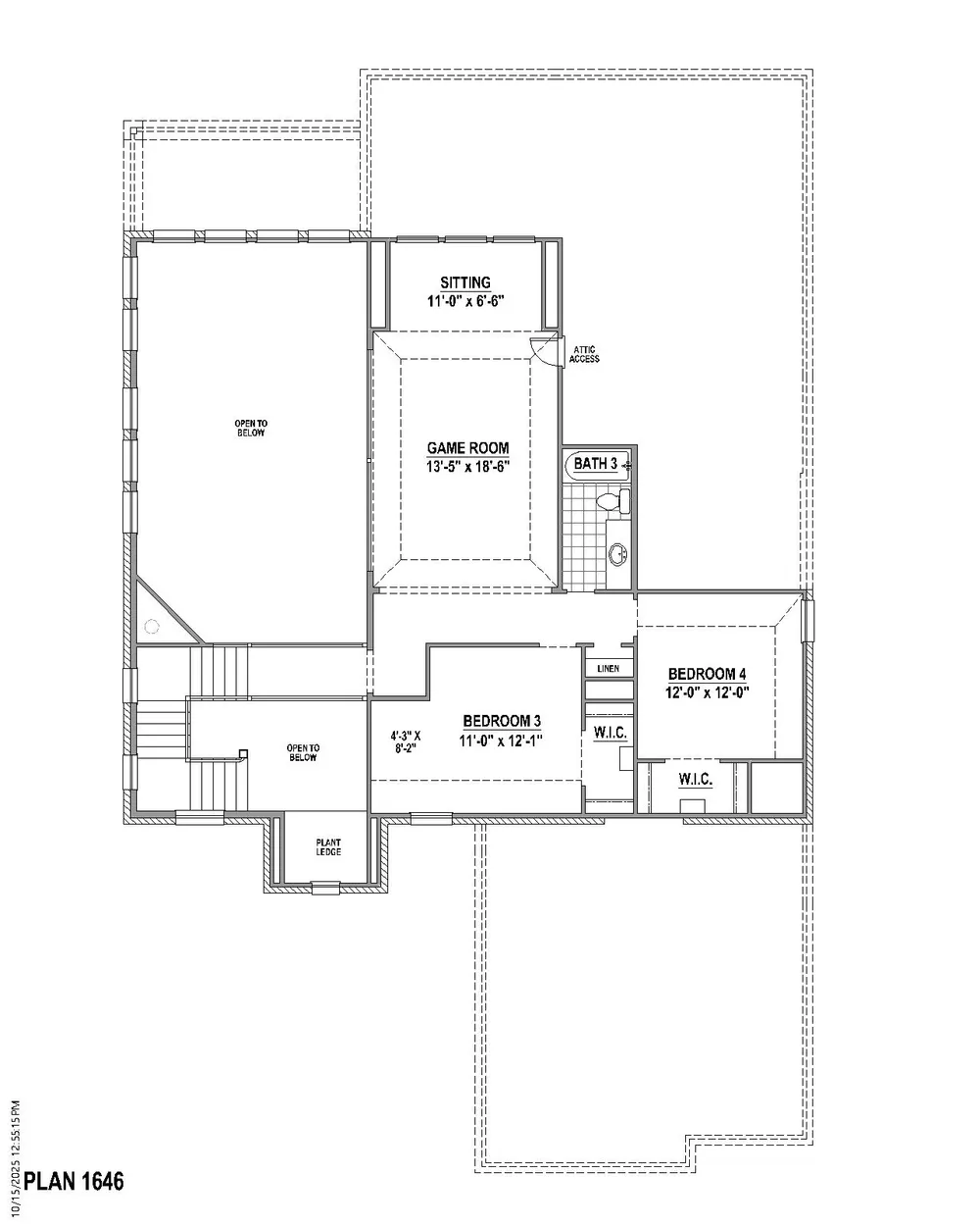
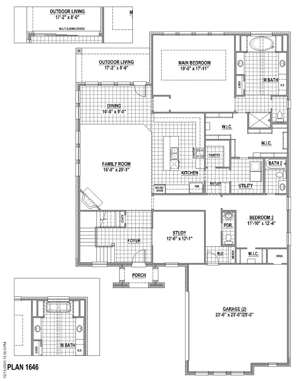
Step inside this stunning 2 story home to be welcomed by a high ceiling foyer and a grand wooden staircase. Wood flooring leads to the spacious open floor plan connecting the kitchen, dining and family room. The large family room showcases a corner fireplace opening to the dining area with wall to wall windows and access to the outdoor living area. The kitchen is a chef's dream with a 6-burner gas cook top, quartz counter tops and custom cabinets, a spacious pantry as well as a Butler's pantry. The private main bedroom features an en suite bathroom with a free standing tub, walk in shower and separate vanities. An oversized walk-in closet conveniently leads to the utility room. Bedroom two and bath, a powder bath and a study complete the first floor. Two upstairs bedrooms, two bathrooms, a game room and a charming sitting area will provide space for family fun and entertaining for years to come. This amazing home is a must see!
Floor plan3 images
Specifications
Address
841 Bella Casa Drive
City, St, Zip
Keller, TX 76248
Price
$1,080,140
Bedrooms
4
Full baths
4
Half baths
1
Square Feet
3,779
Garages
2-Car
Status
ACTIVE
Estimated completion date
7/31/2026
Map
5
photos
EXTERIORINTERIORFLOORPLANFLOORPLANFLOORPLAN
125 S. Kansas Avenue | Olathe, KS | 913-732-8070
©2026 Homebuilders.com. All rights reserved.
Privacy Policy