Back to search results
ACTIVE
$272,490
2530 Walker PlaceIndianapolis, IN 46203
3
beds
2
baths
1,202
sqft
1-car
garage
Standard payment est:$1,690/mo
About this home
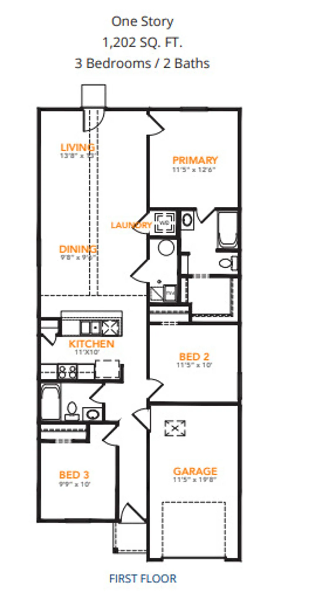
Model 1202 B2 - Yosemite The Yosemite Plan from our Freedom Series is a cozy and efficient single-story home featuring 3 bedrooms, 2 bathrooms, a 1-car garage, and 1,202 square feet of smartly designed living space.This split-level floorplan places two secondary bedrooms and a full bathroom at the front of the home, offering privacy and convenience. Continue into the open-concept living area, where the kitchen with a central island overlooks the dining area and family room—perfect for meals, gatherings, and quality family time. The primary suite is thoughtfully positioned off the family room for added privacy and includes a private bathroom and walk-in closet. The laundry room is also conveniently located on this side of the home for easy access.
Specifications
Address
2530 Walker Place
City, St, Zip
Indianapolis, IN 46203
Price
$272,490
Bedrooms
3
Full baths
2
Square Feet
1,202
Garages
1-Car
Status
ACTIVE
Builder
National HomeCorp
Community
Walker Place
Map
6
photos
EXTERIOREXTERIOREXTERIOREXTERIOREXTERIOREXTERIOR
125 S. Kansas Avenue | Olathe, KS | 913-732-8070
©2026 Homebuilders.com. All rights reserved.
Privacy Policy