Back to search results
ACTIVE
$852,964
2204 Atlas DriveCelina, TX 75009
4
beds
4+
baths
3,991
sqft
3-car
garage
Standard payment est:$5,291/mo
About this home
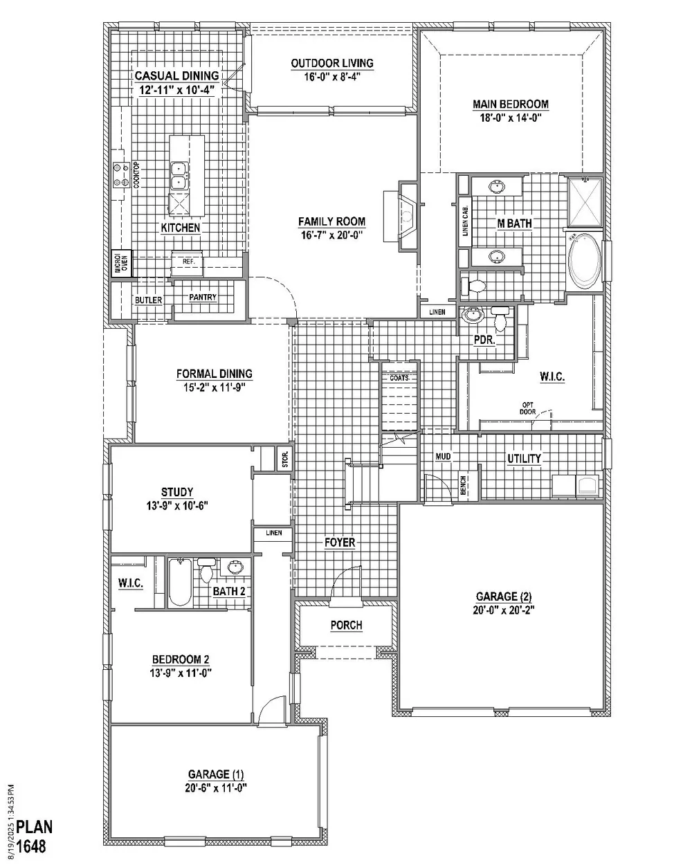
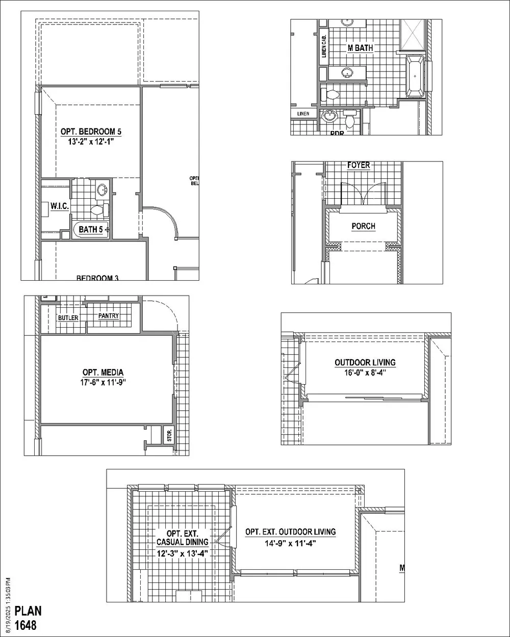
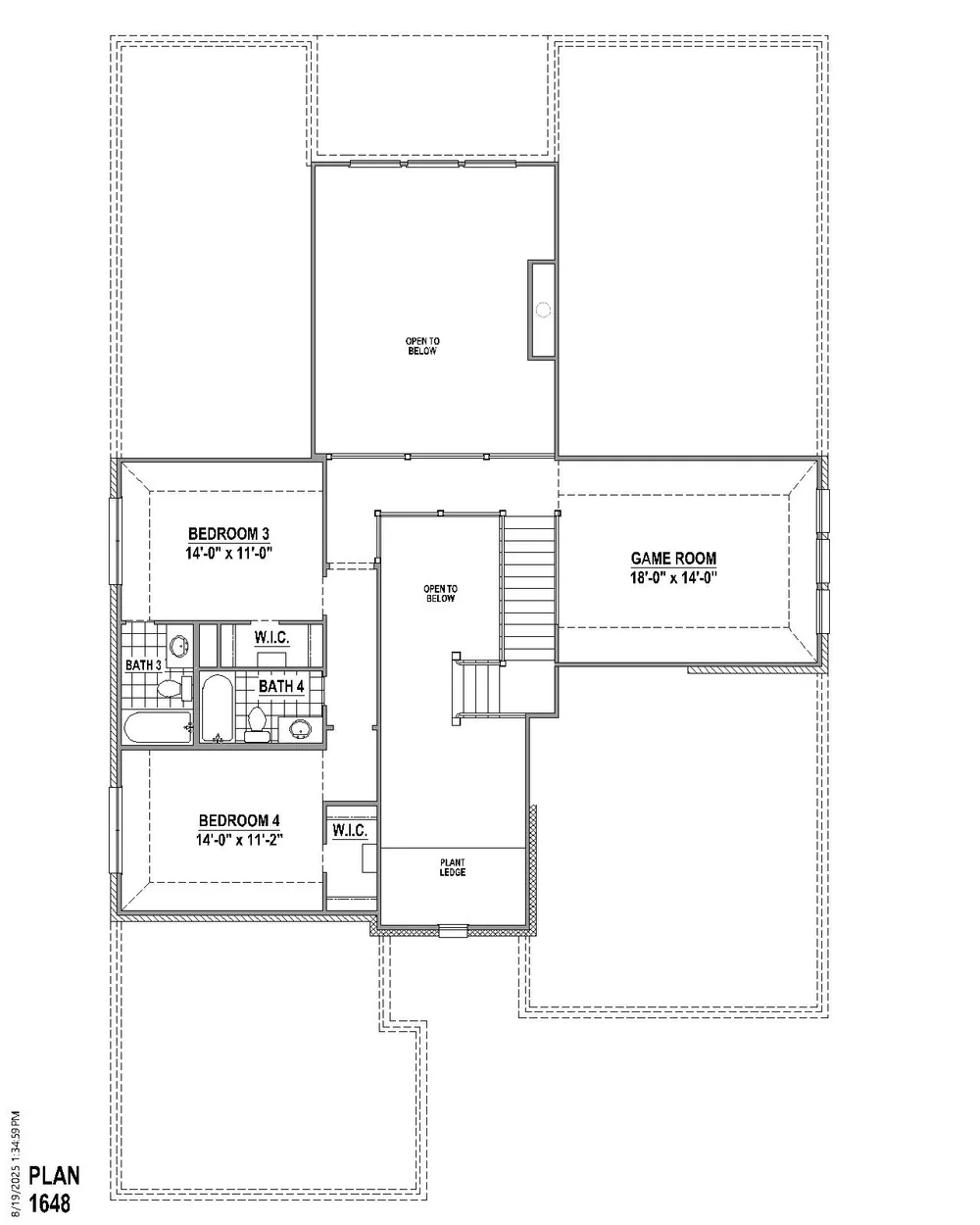
Fantastic 2 story with 4 bedrooms, 4 full baths, 1 powder bath, extended casual dining, formal dining, study, game room, big media room, extended outdoor living space with multi-sliding glass doors and 3-car split swing garage situated on an East facing lot with extra depth, perfect for a pool. Home features a beautiful Transitional Modern elevation with popular gray and white brick and gray chopped stone, grand entry with double entry doors, soaring ceilings in foyer and family room with catwalk overlook, large walk-in kitchen pantry, butler's pantry, free standing rectangular tub, huge main closet with utility room access, guest suite down with private walk-in shower bath, spacious utility room with sink and mud bench. Amenities include upgrades you want like stained wood tread stairs with painted risers, kitchen cabinets to the ceiling, decorative kitchen wood hood, 6-burner range cooktop, beautiful quartz counter tops plus beautiful light colored pre-finished wood floors in all main areas downstairs including study and so much more!
Floor plan4 images
Specifications
Address
2204 Atlas Drive
City, St, Zip
Celina, TX 75009
Price
$852,964
Bedrooms
4
Full baths
4
Half baths
1
Square Feet
3,991
Garages
3-Car
Status
ACTIVE
Estimated completion date
9/30/2026
Map
6
photos
EXTERIORINTERIORFLOORPLANFLOORPLANFLOORPLANFLOORPLAN
125 S. Kansas Avenue | Olathe, KS | 913-732-8070
©2026 Homebuilders.com. All rights reserved.
Privacy Policy