Back to search results
ACTIVE
$999,000
12736 Bend CourtFirestone, CO 80504
4
beds
3+
baths
3,466
sqft
3-car
garage
Standard payment est:$6,197/mo
About this home
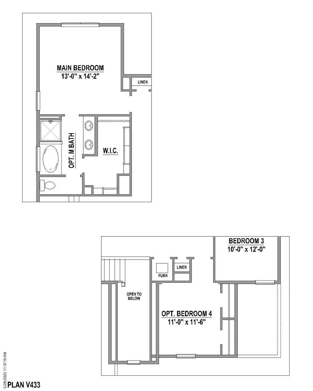
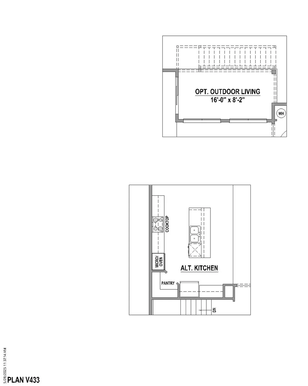
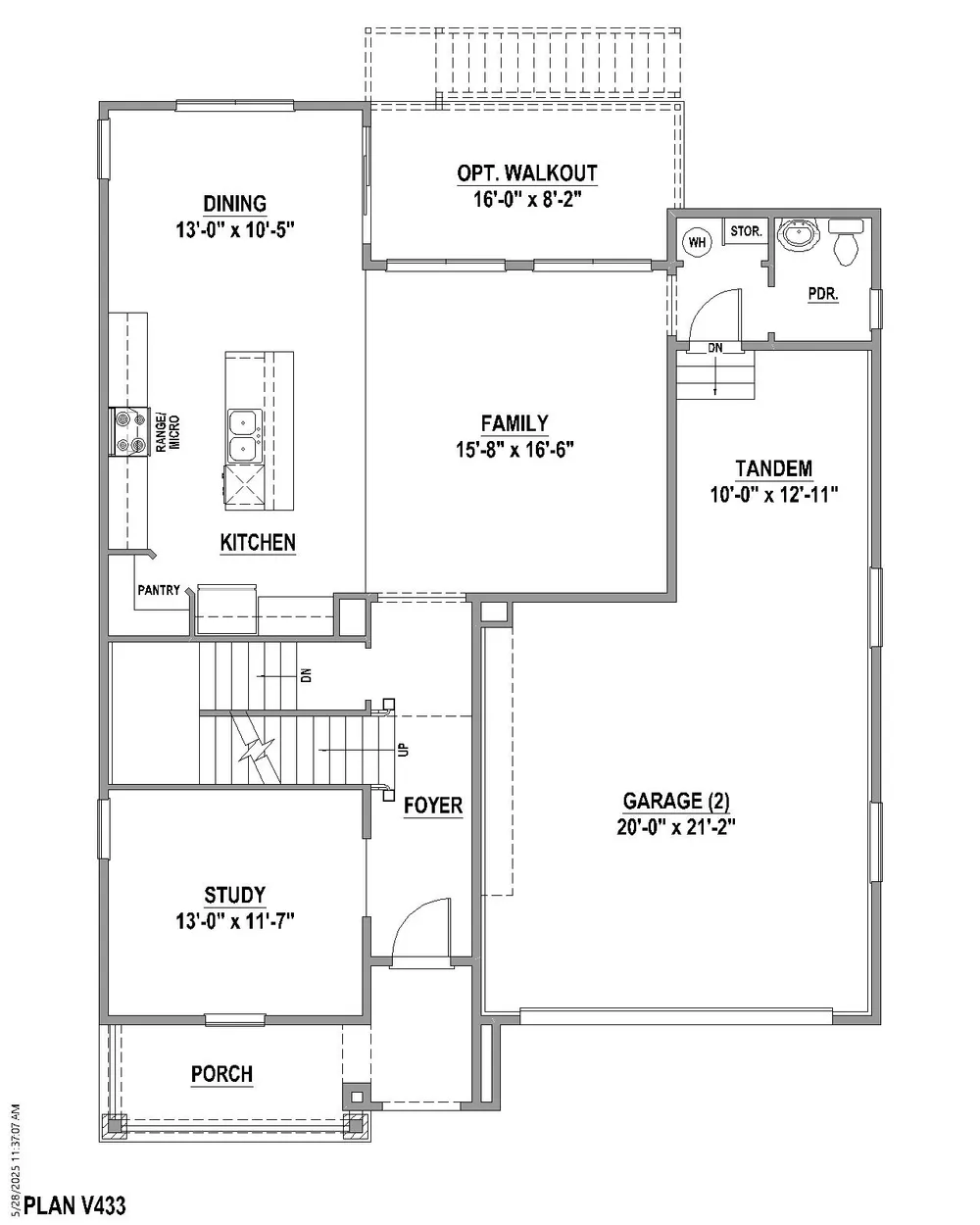
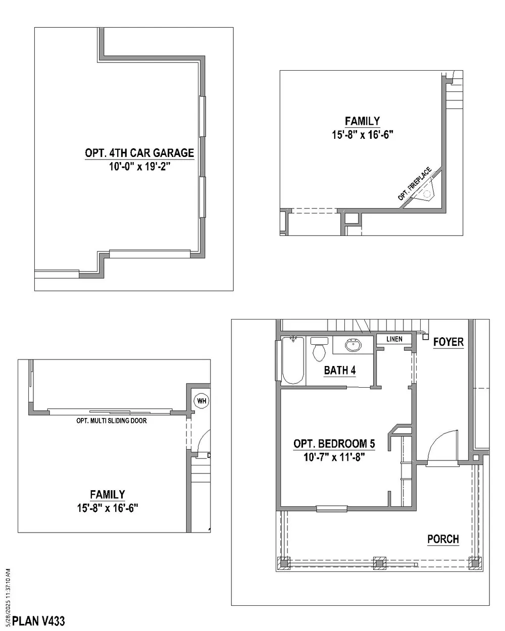
This former American Legend Homes model home (Plan V433) sits on a desirable corner lot and showcases over $75,000 in professional landscaping upgrades, along with extensive interior enhancements including designer wall treatments and premium finishes throughout.This stunning 4 bedroom, 4.5 bath two story home features a charming front porch and exceptional curb appeal. The main level offers an open and inviting layout with a spacious family room, dining area and gourmet kitchen appointed with sleek quartz countertops, upgraded soft close cabinets and dovetail drawers, matte black hardware and a premium stainless appliance packageincluding a 36" 5-burner gas cooktop, exterior vented hood, microwave and convection oven. A cozy fireplace anchors the great room, adding warmth and style.Upstairs, the owners suite is joined by two additional bedrooms, each with walk-in closets. The finished basement expands your living space with a large recreation room and a full bathroomperfect for guests or multi generational living.Comfort is elevated with zoned A/C, two units and smart thermostats on each level. Outdoor living shines with a large covered patio overlooking open space and a south facing backyardideal for evening meals and summer entertaining.Located in a vibrant lake community, residents enjoy paddle boarding, kayaking, fishing, and miles of scenic trails for walking, biking, and sunset strolls. Additional amenities include basketball and pickleball courts, fitness stations, outdoor grills and fire pits, a pavilion lawn, a resort style pool with splash pad, and a beautiful indoor community hub featuring remote work stations and a fitness center.** Model Furniture Not Included.**
Floor plan9 images
Specifications
Address
12736 Bend Court
City, St, Zip
Firestone, CO 80504
Price
$999,000
Bedrooms
4
Full baths
3
Half baths
1
Square Feet
3,466
Garages
3-Car
Status
ACTIVE
Estimated completion date
4/27/2026
Map
47
photos
EXTERIORINTERIORINTERIORINTERIORINTERIORINTERIORINTERIOR
125 S. Kansas Avenue | Olathe, KS | 913-732-8070
©2026 Homebuilders.com. All rights reserved.
Privacy Policy