Back to search results
ACTIVE
$587,935
8003 Manor House WayColorado Springs, CO 80908
3
beds
2+
baths
2,255
sqft
2-car
garage
Standard payment est:$3,647/mo
About this home
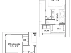
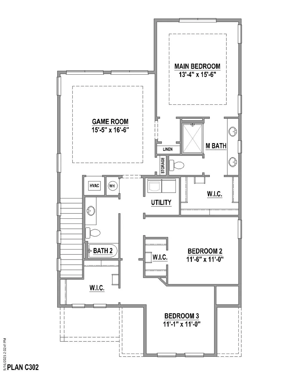
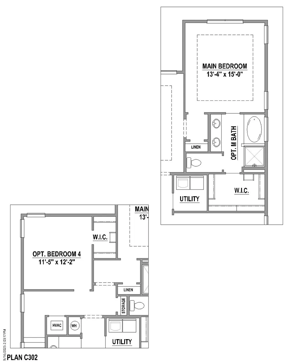
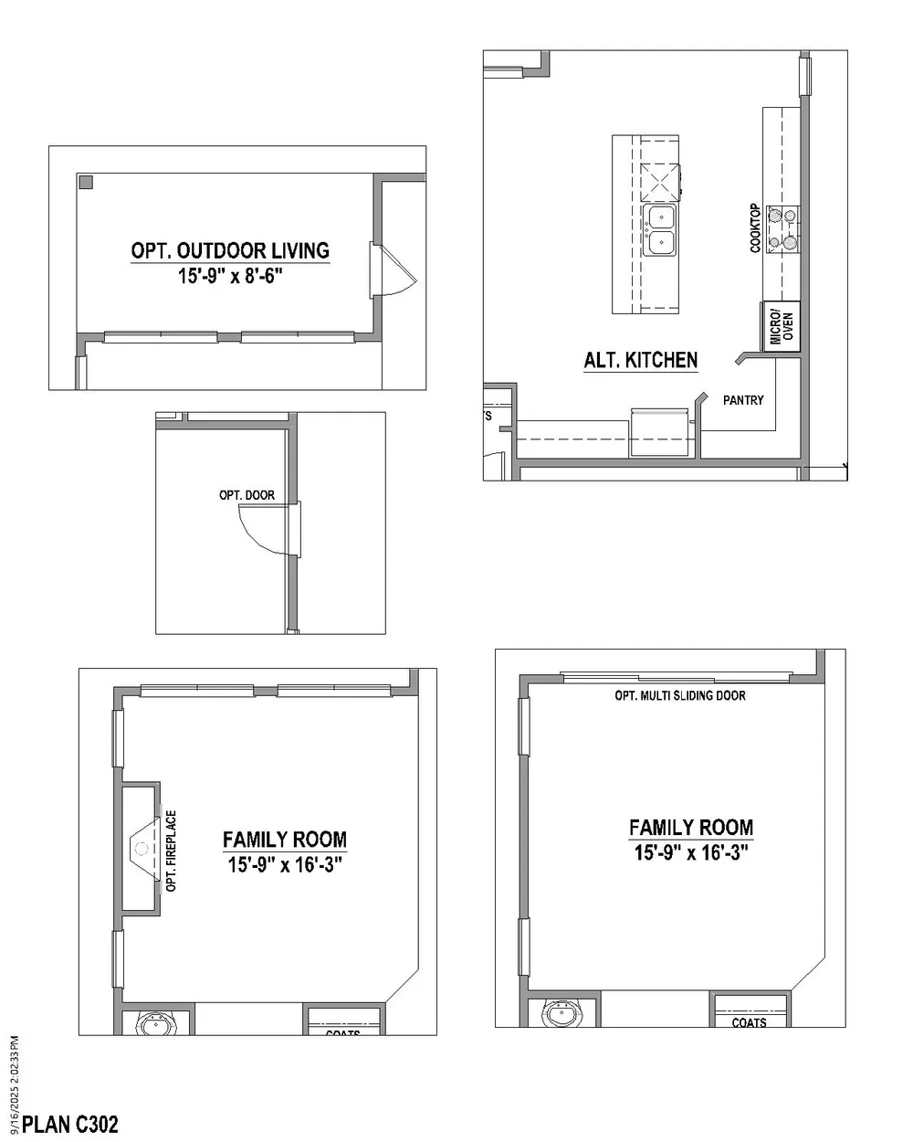
This stunning 2255 sf home combines elegance and functionality in every detail. This home features a welcoming front porch, perfect for relaxing, lots of curb appeal, a rear covered patio and a 2-car garage with an 8' door and garage opener, providing ample storage and much convenience. Inside, the open and bright floor plan creates a welcoming atmosphere, with a main level that includes a half bath, formal dining and a beautifully designed and upgraded kitchen that flows effortlessly into the family room-ideal for both everyday living and entertaining. Upstairs, you'll find a loft or game area, perfect for relaxation or play. The primary bedroom suite is a private retreat, featuring a well-appointed bath. This plan also offers two more bedrooms and a full bath with a conveniently placed laundry room, making this home a perfect balance of comfort and versatility. You too will agree that this home was designed to meet both your functional needs and aesthetic desires.
Floor plan5 images
Specifications
Address
8003 Manor House Way
City, St, Zip
Colorado Springs, CO 80908
Price
$587,935
Bedrooms
3
Full baths
2
Half baths
1
Square Feet
2,255
Garages
2-Car
Status
ACTIVE
Estimated completion date
8/31/2026
Map
7
photos
EXTERIORINTERIORFLOORPLANFLOORPLANFLOORPLANFLOORPLANFLOORPLAN
125 S. Kansas Avenue | Olathe, KS | 913-732-8070
©2026 Homebuilders.com. All rights reserved.
Privacy Policy